- 130 m2 woonoppervlakte
- 4 slaapkamers
- Bouwjaar 1968
- 156 m2 perceel
Een keurige eengezinswoning op een fijne locatie? Dan is dit de woning voor jou, Voltairestraat 16!
De woning is de afgelopen jaren verbouwd en gemoderniseerd. De woning is geheel voorzien van kunststof kozijnen met HR++ glas en kunststof gevelbekleding, weinig onderhoud dus. Er liggen 10 zonnepanelen op het dak. Het energielabel is A!
Enkele pluspunten van de woning:
+ v.v. kunststof kozijnen en gevelbekleding;
+ zonnepanelen
+ royaal woonoppervlak;
+ tuin gelegen op het zuiden;
+ aantrekkelijke, kindvriendelijke ligging;
+ alle voorzieningen in de omgeving en nabij de uitvalswegen.
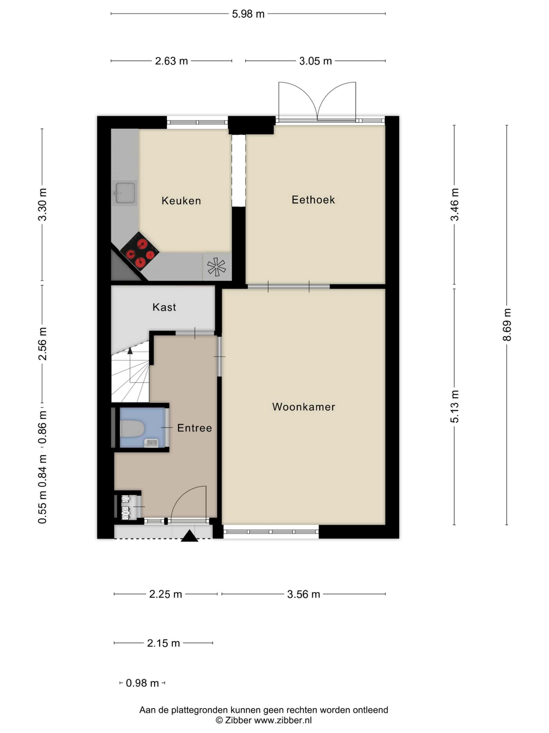
Door de woning heen: we komen binnen in de hal met de vernieuwde (groepen) meterkast, garderoberuimte, het toilet en een ruime berging. Via een fraaie taatsdeur komen we in de woonkamer. Een prettige oppervlakte met veel lichtinval en vrij zicht. De woonkamer is door de glas-in-looddeuren een kamer en suite geworden, wat veel sfeer geeft. Er is voldoende ruimte voor het plaatsen van een zithoek en een eethoek. De open keuken is gemoderniseerd in 2023, in L-vorm opgesteld en voorzien van alle benodigde inbouwapparatuur o.a. een inductie kookplaat, afzuigschouw, vaatwasser en een elektrische oven. Via openslaande deuren aan de achterzijde kom je in de ruime tuin. Deze is op het zuiden gelegen, dus lekker zonnig.
We nemen de trap in de hal naar de eerste verdieping. Hier vinden we 3 ruime slaapkamers en een nette badkamer met een douche, een toilet en een wastafelmeubel.
De 2e verdieping is bereikbaar via een vaste trap. Ook hier valt direct de ruimte op. Een voorzolder met ruimte voor de wasmachine-aansluiting, de c.v.-ketel (Remeha Calenta) plus een aparte bergruimte. Er is een grote zolderkamer met dakraam. De gehele 2e verdieping is in 2023 volledig afgetimmerd en geïsoleerd en ideaal om als werk-, hobby- of logeerkamer in te richten.
Buiten: de zonnige (z) tuin biedt veel privacy. Er is een fijn terras en er zijn borders met volgroeide bomen en struiken. Achterin de tuin staat de stenen schuur met een kleine overkapping. Er is een achteringang met een afsluitbare poort.
Locatie: je kunt hier heerlijk wonen in de wijk Zevenhuizen. Een ruime woning in een rustige, kindvriendelijke buurt met veel voorzieningen in de directe omgeving. Een speelveld, het vernieuwde winkelcentrum De Anklaar, het Mheenpark met veel groen en vijverpartijen plus een medisch centrum met huisartsen, apotheek, tandartsen, orthodontist en fysiotherapiepraktijk zijn op maar 5 minuten loopafstand. Ook scholen (basis èn voortgezet), een kinderboerderij met grote speeltuin, zwembad en sportverenigingen zijn in de directe omgeving. Je woont hier aantrekkelijk aan een pleintje, waardoor je een mooi weids uitzicht hebt aan de voorzijde. Er zijn bij de woning ruim voldoende parkeermogelijkheden maar het nabij gelegen Winkelcentrum beschikt ook over een eigen parkeergarage met de mogelijkheid van opladen voor elektrische auto’s.
Dit is echt een fijne, verzorgde woning! Bel snel voor een afspraak, we laten je het graag zien.
Enkele kenmerken: Bouwjaar: 1968. Grondoppervlakte: 156 m². Gebruiksoppervlak wonen: 130 m². Extra bergruimte: 11 m². Energielabel A.
Alles over deze woning
Overdracht
| Prijs | € 425.000,- k.k. |
| Status | Verkocht |
| Aanvaarding | In overleg |
| Aangeboden sinds | 01-01-1970 |
Bouw
| Type object | Woonhuis |
| Soort | Eengezinswoning |
| Type | Tussenwoning |
| Bouwjaar | 1968 |
| Daktype | Dwarskap |
| Isolatievormen | Dakisolatie, Muurisolatie, Vloerisolatie |
Oppervlaktes en inhoud
| Perceel | 156 m2 |
| Woonoppervlakte | 130 m2 |
| Inhoud | 461 m3 |
| Buitenruimtes gebouwgebonden of vrijstaand | 1 m2 |
Indeling
| Aantal kamers | 6 |
| Aantal slaapkamers | 4 |
Locatie
| Ligging | Aan rustige weg, In woonwijk |
Tuin
| Type | Achtertuin |
| Staat | Verzorgd |
| Ligging | Zuidwest |
| Achterom | Ja |
Uitrusting
| Soorten warm water | CV ketel |
| Parkeerfaciliteiten | Openbaar parkeren |





































