- 93 m2 woonoppervlakte
- 2 slaapkamers
- Bouwjaar 1949
- 382 m2 perceel
Ben jij handig en op zoek naar een een twee-onder-een-kapwoning op een royaal perceel en in een geliefde woonomgeving? Kom dan snel kijken bij Mendelssohnlaan 12!
Deze woning dient gemoderniseerd te worden maar de randvoorwaarden zijn goed. Qua woonomgeving, de grote tuin, het leuke model en de vele verbouwingsmogelijkhgeden vind je hier alles om je droomwoning te realiseren.
Deze leuke woning ligt in de Componistenbuurt van Apeldoorn Zuid. Een geliefde woonlocatie. Het ligt op steenworp afstand van een mooi Sprengengebied waar je fijn kunt wandelen. Maar het ligt ook op steenworp afstand van onder meer een zwembad, een kinderboerderij, tennisclub en een voetbalclub. Alles wat je nodig hebt om prettig te wonen vind je in de omgeving. Voor je dagelijkse boodschappen wandel of fiets je naar het Schubertplein. Een buurtwinkelcentrum met op vrijdag een gezellige markt. De op- en afritten van de snelwegen zijn vanaf deze locatie snel te bereiken en het Station en centrum van Apeldoorn vind je op fietsafstand.
Enkele pluspunten van de woning:
+ geliefde woonomgeving;
+ vrijstaande houten garage
+ een royaal kavel;
+ achtertuin op de zonzijde;
+ alle voorzieningen in de omgeving aanwezig
+ een leuke architectuur
Door de woning heen:
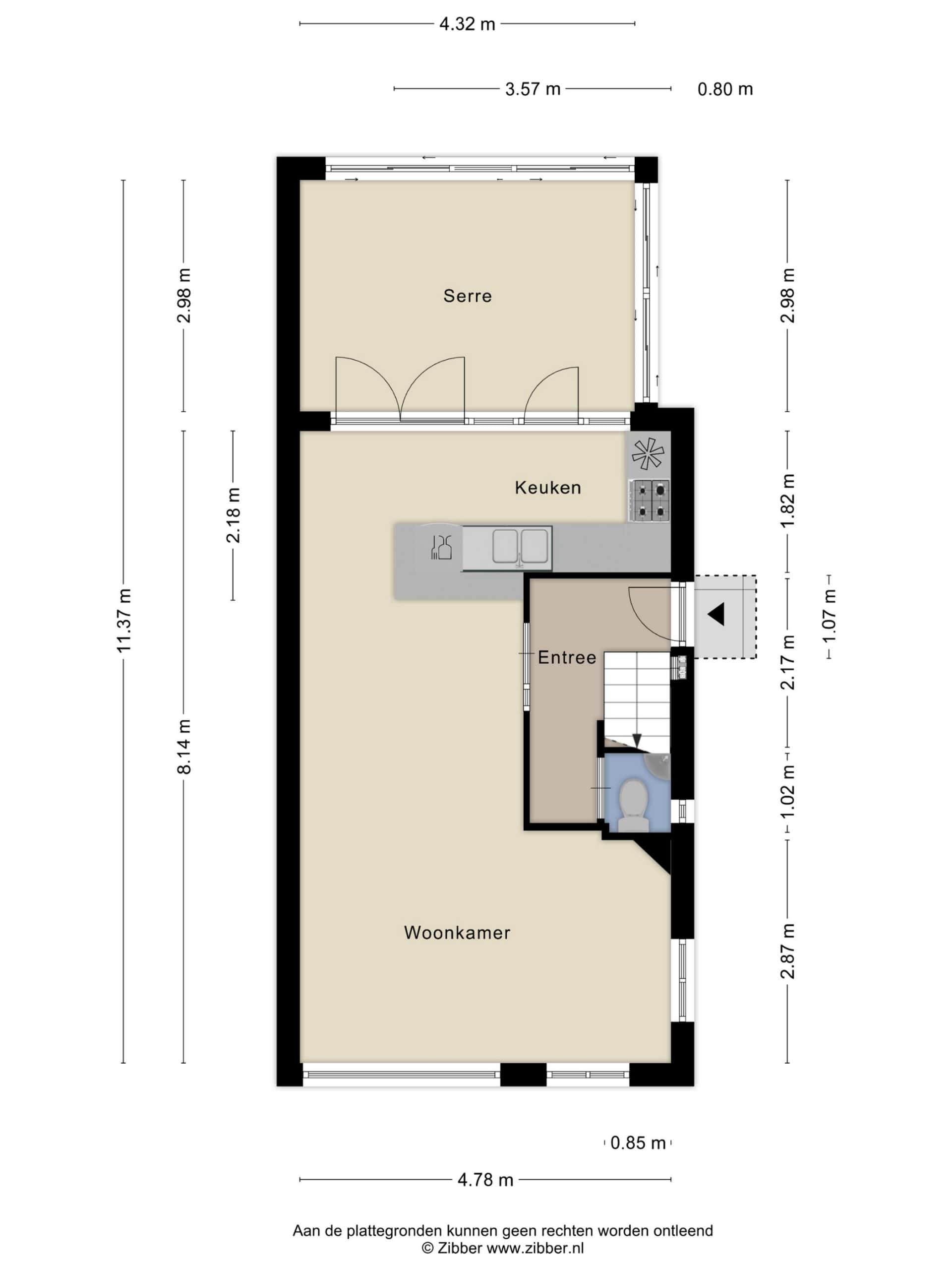
We komen via de zij-entree binnen in de hal met toegang tot het toilet, provisieruimte en trap naar de verdieping. We lopen door naar de woonkamer. Aan de voorzijde van de woning vind je genoeg ruimte voor het plaatsen van een grote zithoek en achter voor een eettafel. Vanuit de voorkamer heb je een leuk uitzicht over het straatbeeld. Aan de achterzijde van de woning vind je de eenvoudige open keuken. Vanuit de keuken kom je in een grote aangebouwde serre. Deze geeft toegang tot de grote achtertuin.
We nemen de trap naar de verdieping. Vanuit de overloop zijn twee ruime slaapkamers en de badkamer toegankelijk. De slaapkamers aan de voorzijde van de woning is een hele ruime slaapkamer. Indien gewenst kun je hier eenvoudig twee kamers van maken. De tweede slaapkamer bevindt zich aan de tuinzijde van de woning. De naastgelegen, royale badkamer is eenvoudig en beschikt over een douche, toilet en wastafel. Op de overloop vind je een luik naar een grote vliering. Door middel van het plaatsen van een vaste trap en een dakopbouw kun je op zolder veel woonoppervlakte realiseren.
Ben jij enthousiast geworden en wil je een kijkje komen nemen? Bel dan snel met Buurman Makelaardij!
Alles over deze woning
Overdracht
| Prijs | € 395.000,- k.k. |
| Status | Verkocht |
| Aanvaarding | In overleg |
| Aangeboden sinds | 01-01-1970 |
Bouw
| Type object | Woonhuis |
| Soort | Eengezinswoning |
| Type | Twee onder één kapwoning |
| Bouwjaar | 1949 |
| Daktype | Dwarskap |
| Isolatievormen | Gedeeltelijk dubbelglas |
Oppervlaktes en inhoud
| Perceel | 382 m2 |
| Woonoppervlakte | 93 m2 |
| Inhoud | 350 m3 |
| Buitenruimtes gebouwgebonden of vrijstaand | 1 m2 |
Indeling
| Aantal kamers | 3 |
| Aantal slaapkamers | 2 |
Locatie
| Ligging | Aan rustige weg, In woonwijk |
Tuin
| Type | Achtertuin |
| Staat | Aan te leggen |
| Ligging | Zuid |
| Achterom | Ja |
Uitrusting
| Soorten warm water | CV ketel |
| Parkeerfaciliteiten | Op eigen terrein |






































