- 93 m2 woonoppervlakte
- 3 slaapkamers
- Bouwjaar 1972
- 8 m2 perceel
Instapklare tussenwoning gelegen in een geliefde woonomgeving!
Kooikersdreef 64 is een gunstig gelegen tussenwoning in woonwijk De Maten, nabij speelveldjes, park, basisscholen en winkelcentrum. Het stadscentrum en NS-station zijn binnen tien minuten op de fiets te bereiken.
In het kort
+ gemoderniseerde tussenwoning;
+ dak vernieuwd;
+ energielabel B;
+ 3 slaapkamers;
+ dichtbij alle voorzieningen.
Door de woning heen:
begane grond:
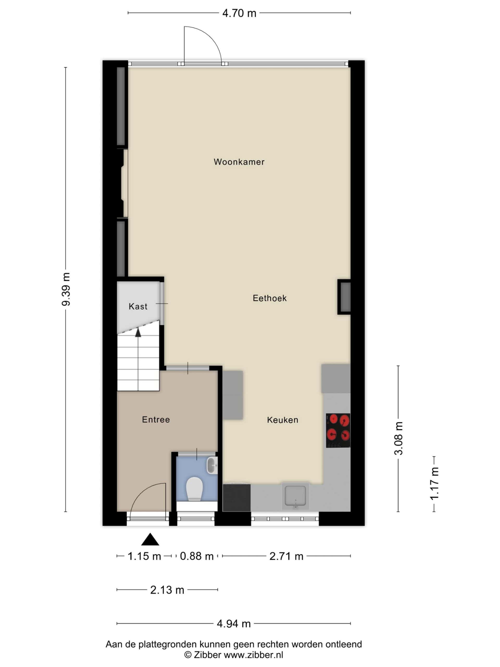
Bij binnenkomst via de voordeur betreed je de hal met het toilet en een garderobe. Vanuit de hal stap je in de tuingerichte woonkamer. Wat meteen opvalt is de rustige sfeer, alle kleuren zijn op elkaar afgestemd en er is veel lichtinval. Er ligt een mooie houten vloer en er is een tv-wand met een sierhaard. Onder de trap is er een ruime bergkast met daarin de meterkast. Aan de voorzijde van de woning bevindt zich de moderne keuken (2017). De keuken is ruim opgezet en voorzien van diverse inbouwapparatuur.
Eerste verdieping:
Via de trap in de hal bereik je de eerste verdieping. Hier bevinden zich drie slaapkamers en de badkamer. Eén ruime slaapkamer is gelegen aan de voorzijde van de woning en heeft een vaste kastenwand. Twee slaapkamers liggen aan de achterzijde met uitzicht op de tuin.
De moderne badkamer is uitgevoerd met een wastafel, een toilet en een douchehoek. En er is vloerverwarming, lekker comfortabel.
Tuin:
De tuin is leuk aangelegd met een terras, sierbestrating, borders en achterin een veranda. Je vindt hier voldoende privacy en je kunt tot de late uurtjes van het buitenleven genieten. Aan de voorzijde is er een ruime, geïsoleerde stenen berging en een hekwerk met een poort.
Locatie:
De woning is gelegen aan een woonerf in de wijk de Maten met gelegenheid om te parkeren. Een klein winkelcentrum voor de dagelijkse boodschappen is op loopafstand aanwezig. Ook op loopafstand zijn in de wijk diverse scholen en sportfaciliteiten aanwezig. Stap je op de fiets dan ben je binnen vijf minuten bij het grote winkelcentrum De Eglantier met diverse supermarkten en speciaalzaken. Via de uitvalswegen Matenpoort en Laan van Maten ben je met vijf tot tien minuten in het centrum of bij de snelweg.
Interesse?
Ben je op zoek naar een keurig onderhouden tussenwoning in een geliefde leefomgeving? Aarzel niet en maak snel een afspraak voor een bezichtiging met Buurman Makelaardij. Vergeet niet je eigen NVM-aankoopmakelaar in te schakelen, die jouw belangen behartigt en je tijd, geld en zorgen bespaart.
Kenmerken:
Bouwjaar: 1972
Perceeloppervlakte: 140 m2
Woonoppervlakte: 93 m2
Energielabel: B
Alles over deze woning
Overdracht
| Prijs | € 369.500,- k.k. |
| Status | Verkocht |
| Aanvaarding | In overleg |
| Aangeboden sinds | 01-01-1970 |
Bouw
| Type object | Woonhuis |
| Soort | Eengezinswoning |
| Type | Tussenwoning |
| Bouwjaar | 1972 |
| Daktype | Plat dak |
| Isolatievormen | Dakisolatie, Muurisolatie, Dubbelglas |
Oppervlaktes en inhoud
| Perceel | 8 m2 |
| Woonoppervlakte | 93 m2 |
| Inhoud | 329 m3 |
| Buitenruimtes gebouwgebonden of vrijstaand | 0 m2 |
Indeling
| Aantal kamers | 4 |
| Aantal slaapkamers | 3 |
Locatie
| Ligging | Aan rustige weg, In woonwijk |
Tuin
| Type | Achtertuin |
| Staat | Fraai aangelegd |
| Ligging | Zuidoost |
| Achterom | Nee |
Uitrusting
| Soorten warm water | CV ketel |
| Parkeerfaciliteiten | Openbaar parkeren |






































