- 86 m2 woonoppervlakte
- 3 slaapkamers
- Bouwjaar 1973
- 198 m2 perceel
Op een fijne locatie in de wijk Orden staat dit gemoderniseerde vrijstaande woonhuis met eigen parkeerplaats, een zonnige besloten tuin op het oosten en een vrijstaande schuur. Zoek jij dat? Kom dan snel kijken bij Hendrik Willem Mesdagstraat 2!
Hier geniet je van de rust van een groene, kindvriendelijke woonomgeving, terwijl voorzieningen binnen handbereik zijn: het winkelcentrum Ordenplein ligt om de hoek, de bossen zijn op loopafstand en binnen 10 minuten fiets je naar het centrum of station. Dankzij de nabijgelegen A1 zijn ook de omliggende steden uitstekend bereikbaar.
De woning is door de jaren heen keurig onderhouden en beschikt over diverse moderne en duurzame voorzieningen. Zo zijn er zonnepanelen, is de woning voorzien van muurisolatie, dak- en vloerisolatie, grotendeels kunststof kozijnen en beschikt de woning over een moderne keuken en sanitair. Dit maakt de woning niet alleen comfortabel, maar ook energiezuinig en toekomstbestendig.
Enkele pluspunten van de woning:
+ Parkeergelegenheid op eigen terrein
+ Energielabel B
+ Instapklaar
+ Moderne keuken en sanitair
+ Zonnepanelen
+ Authentiek glas-in-loodraam op de overloop
Door de woning heen
Begane grond
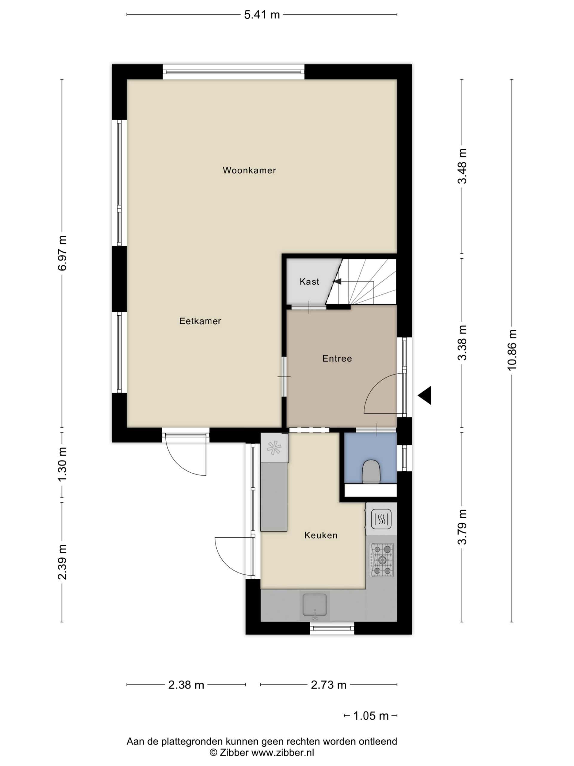
We komen binnen in de hal met toilet (wandcloset), trapopgang en een praktische provisiekast. De lichte L-vormige woonkamer is voorzien van een stijlvolle pvc-visgraatvloer die door de gehele verdieping is doorgelegd. Dankzij de ramen rondom valt er veel natuurlijk licht binnen, wat zorgt voor een aangename en open sfeer. Voor warme zomerdagen is er bovendien een airco aanwezig. Aan de achterzijde bevindt zich de moderne keuken, uitgerust met diverse inbouwapparatuur en volop kastruimte. Vanuit zowel de woonkamer als de keuken is er directe toegang tot de tuin.
Eerste verdieping
Via de vaste trap, die is voorzien van pvc, bereiken we de overloop met bergkast en wasmachineaansluiting. Hier zorgt een fraai glas-in-loodraam voor een authentieke en sfeervolle uitstraling. De gehele verdieping is voorzien van een pvc kliklaminaatvloer. Er zijn drie slaapkamers aanwezig en een moderne badkamer met inloopdouche, vrijhangend wandcloset en een dubbel wastafelmeubel.
Zolder
Via een vlizotrap is de bevloerde bergvliering bereikbaar. Deze ruimte is ideaal voor het opslaan van spullen die je niet dagelijks nodig hebt.
Buitenruimte
De woning beschikt over een zonnige, besloten tuin op het oosten waar je veel privacy ervaart. Daarnaast is er een vrijstaande schuur aanwezig en is parkeren mogelijk op eigen terrein.
Ben jij op zoek naar een vrijstaande woning op een centrale en toch rustige, groene locatie? Dan is de Hendrik Willem Mesdagstraat 2 zeker een bezichtiging waard!
Alles over deze woning
Overdracht
| Prijs | € 439.500,- k.k. |
| Status | Verkocht |
| Aanvaarding | In overleg |
| Aangeboden sinds | 01-01-1970 |
Bouw
| Type object | Woonhuis |
| Soort | Eengezinswoning |
| Type | Vrijstaande woning |
| Bouwjaar | 1973 |
| Daktype | Zadeldak |
| Isolatievormen | Dakisolatie, Muurisolatie, Vloerisolatie, Dubbelglas |
Oppervlaktes en inhoud
| Perceel | 198 m2 |
| Woonoppervlakte | 86 m2 |
| Inhoud | 333 m3 |
| Buitenruimtes gebouwgebonden of vrijstaand | 0 m2 |
Indeling
| Aantal kamers | 4 |
| Aantal slaapkamers | 3 |
Locatie
| Ligging | Aan rustige weg, In woonwijk |
Tuin
| Type | Tuin rondom |
| Staat | Normaal |
| Achterom | Ja |
Uitrusting
| Soorten warm water | CV ketel |
| Parkeerfaciliteiten | Openbaar parkeren, Op eigen terrein |

































