- 49 m2 woonoppervlakte
- 1 slaapkamers
- Bouwjaar 1973
Ben je op zoek naar een instapklaar 2 kamerappartement op een fijne locatie? Kom dan kijken bij Eksterweg 134 te Apeldoorn.
Dit leuke twee kamerappartement met balkon en berging is in lichte, moderne kleurstellingen uitgevoerd, goed onderhouden, voorzien van prima vloer- en wandafwerkingen, goed sanitair en een keuken met apparatuur. Je meubels er in en je kunt wonen.
Je vindt dit appartement aan de zuidkant van Apeldoorn, op 10 minuten fietsen van het station en centrum van Apeldoorn. Het appartement bevindt zich op de bovenste woonlaag van het complex en je hebt zowel vanuit de woonkamer als vanaf het balkon een prachtig uitzicht. Het complex beschikt over een liftinstallatie en een afgesloten entree met een videofoon. Je kunt hier veilig en comfortabel wonen.
Voor je dagelijkse boodschappen zijn er in de nabije omgeving meerdere winkelcentra aanwezig waaronder het Hart van Zuid en het Schubertplein. Ook andere voorzieningen vind je dichtbij. Ben je aangewezen op het openbaar vervoer dan is het goed te weten dat de bushalte zich op steenworp afstand bevindt Daarnaast zijn de snelwegen A1 en A50 met de auto snel te bereiken.
Enkele kenmerken van de woning:
+ Achter het complex bevindt zich een parkeerterrein waar vrij geparkeerd kan worden;
+ Het appartement wordt verwarmd middels blokverwarming.
+ De VVE is gezond, actief en wordt beheerd door MVGM;
+ De woning beschikt over een energielabel F
+ Het complex is voorzien van een liftinstallatie en een afgesloten entree met videofoon
+ Het is keurig onderhouden, instapklaar
+ Bovenste etage met een fraai uitzicht.
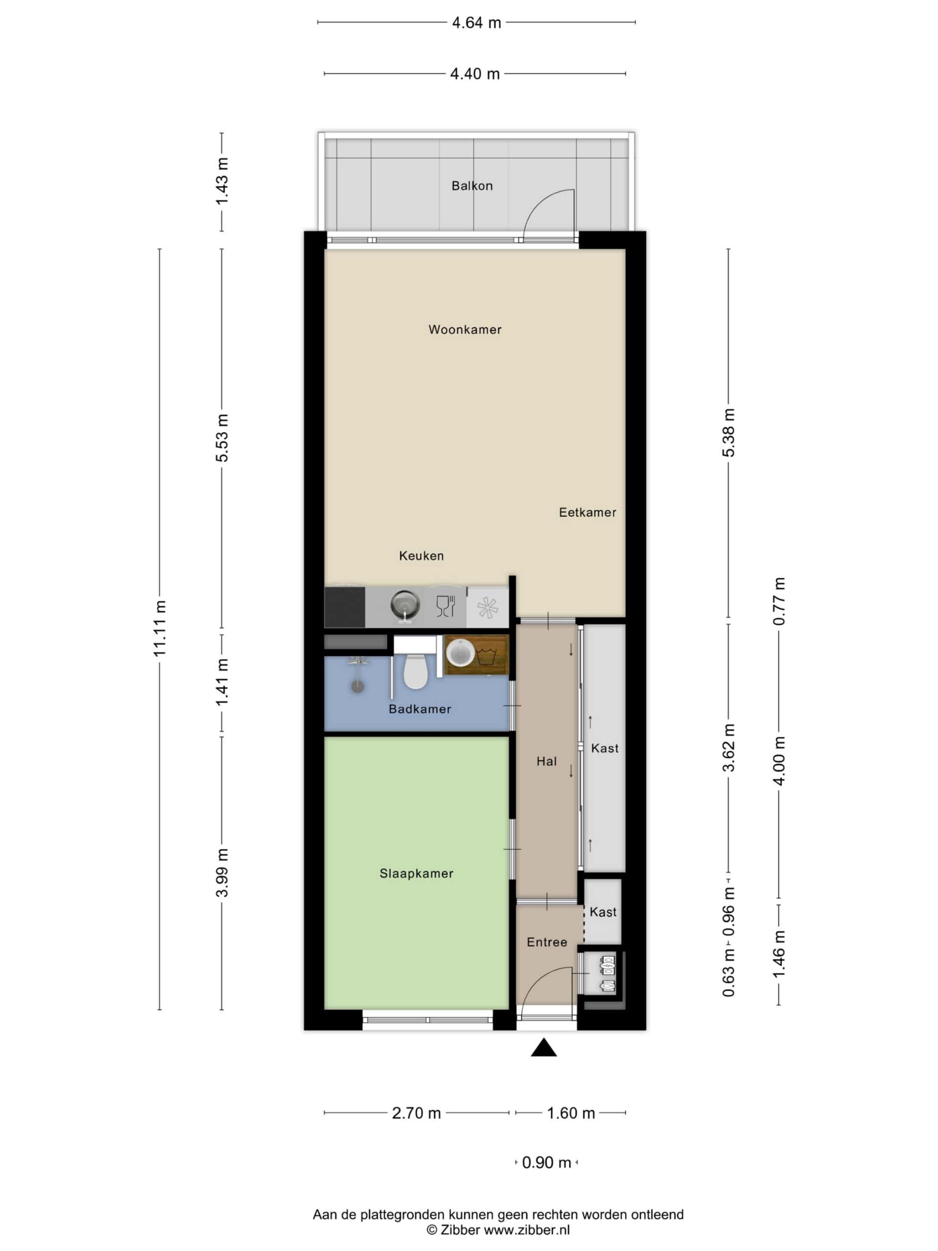
Door de woning heen:
We komen binnen in een tochtportaal met de meterkast en plek voor de garderobe. We lopen door naar de hal met een grote vaste kastenwand, ideaal voor het opbergen van al je spullen. Vanuit hier lopen we door naar de woonkamer. Bij binnenkomst is al goed zichtbaar dat het appartement keurig onderhouden is. Qua gebruikte materialen, vloer- en wandafwerkingen, alles is hier op elkaar afgestemd. In de woonkamer heb je veel lichtinval en via een deur kun je hier ook het balkon op. Het balkon ligt op de zonzijde en het is een fijne plek om te zitten met een vrij uitzicht.
Het appartement heeft een open keuken, deze heeft een moderne kleurstelling, is voorzien van apparatuur en ziet er keurig uit.
Vanuit de hal zijn ook de slaapkamer en de badkamer toegankelijk. De slaapkamer is van een prima formaat en bevindt zich aan de achterzijde van het appartement. De badkamer ziet er, net als de rest van de woning, goed uit en is voorzien van een douche, een wastafelmeubel en een vrijhangend wandcloset.
De servicekosten bedragen € 154,- per maand ten behoeve van o.a. de opstalverzekering, voorschot groot onderhoud en schoonmaakkosten en het verlichten van de gemeenschappelijke ruimte. De voorschot stookkosten bedragen € 120,- per maand.
Heb je interesse gekregen in dit leuke appartement op een fijne locatie? Bel dan snel voor een afspraak!
Alles over deze woning
Overdracht
| Prijs | € 235.000,- k.k. |
| Status | Verkocht |
| Aanvaarding | In overleg |
| Aangeboden sinds | 01-01-1970 |
Bouw
| Type object | Appartement |
| Soort | Galerijflat |
| Bouwjaar | 1973 |
| Daktype | Plat dak |
| Isolatievormen | Gedeeltelijk dubbelglas |
Oppervlaktes en inhoud
| Woonoppervlakte | 49 m2 |
| Inhoud | 161 m3 |
| Buitenruimtes gebouwgebonden of vrijstaand | 7 m2 |
Indeling
| Aantal kamers | 2 |
| Aantal slaapkamers | 1 |
Locatie
| Ligging | In woonwijk |
Tuin
| Achterom | Nee |
Uitrusting
| Soorten warm water | Centrale voorziening |
| Parkeerfaciliteiten | Openbaar parkeren |






























