- 96 m2 woonoppervlakte
- 2 slaapkamers
- Bouwjaar 2009
Wonen op een rustige, groene plek in Apeldoorn-West én alle dagelijkse voorzieningen binnen handbereik? Dit ruime en instapklare 3-kamerappartement combineert comfort, licht en gemak in een modern en goed onderhouden complex.
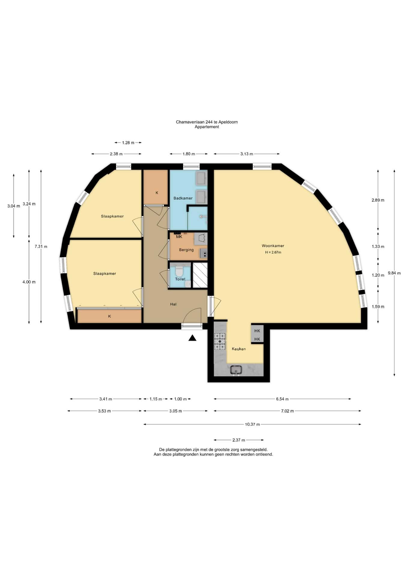
Het appartement is gelegen op de eerste verdieping van een complex uit 2008 en beschikt over een woonoppervlakte van circa 96 m². Je geniet hier van een royale en lichte woonkamer, twee volwaardige slaapkamers, een eigen parkeerplaats in de afgesloten parkeergarage en een praktische berging in de onderbouw.
Ook op het gebied van duurzaamheid zit je hier goed: het appartement heeft energielabel A. Het complex beschikt over een afgesloten entree met intercom en een lift, wat het wooncomfort compleet maakt.
Enkele pluspunten
– Ruime woonkamer
– Eigen parkeerplaats in de parkeergarage
– Lift aanwezig
– Energielabel A.
Door het appartement heen
Via de entree kom je in de ruime hal die toegang biedt tot alle vertrekken. Vanuit hier loop je door naar de royale woonkamer. Dankzij de grote raampartijen is dit een bijzonder prettige en lichte leefruimte. De nette laminaatvloer zorgt voor een warme en verzorgde uitstraling.
De moderne keuken sluit aan op de woonkamer en is voorzien van diverse inbouwapparatuur en voldoende kastruimte, ideaal voor dagelijks gebruik.
Via de hal zijn tevens het separate toilet met fonteintje, de twee slaapkamers en de badkamer bereikbaar. De badkamer is volledig betegeld en modern uitgevoerd met een dubbele wastafel en een douche. Daarnaast beschikt het appartement over een handige vaste kast en een inpandige berging met cv-installatie en aansluitingen voor wasapparatuur.
Kelder
In de ondergelegen parkeerkelder beschik je over een eigen parkeerplaats en een separate berging.
Ligging:
De locatie is rustig, maar verrassend centraal. Winkelcentrum Ordenplein, scholen, openbaar vervoer en het Orderbos bevinden zich op korte afstand. Ook de uitvalswegen en de A1 zijn snel bereikbaar. Het centrum van Apeldoorn en het NS-station liggen op fietsafstand.
De VvE-bijdrage bedraagt € 334,75 per maand (inclusief parkeerplaats).
Conclusie:
Een comfortabel, ruim en energiezuinig appartement op een fijne woonlocatie in Apeldoorn-West, waar je zonder klussen direct kunt wonen.
Interesse in dit appartement? Schakel direct uw eigen NVM aankoopmakelaar in. Uw NVM aankoopmakelaar komt op voor uw belang en bespaart u tijd, geld en zorgen.
Alles over deze woning
Overdracht
| Prijs | € 325.000,- k.k. |
| Status | Verkocht |
| Aanvaarding | In overleg |
| Aangeboden sinds | 01-01-1970 |
Bouw
| Type object | Appartement |
| Soort | Portiekflat |
| Bouwjaar | 2009 |
| Isolatievormen | Volledig geïsoleerd |
Oppervlaktes en inhoud
| Woonoppervlakte | 96 m2 |
| Inhoud | 321 m3 |
| Buitenruimtes gebouwgebonden of vrijstaand | 0 m2 |
Indeling
| Aantal kamers | 3 |
| Aantal slaapkamers | 2 |
Locatie
| Ligging | In woonwijk |
Tuin
| Achterom | Nee |
Uitrusting
| Soorten warm water | CV ketel |
| Parkeerfaciliteiten | Parkeergarage |





























