- 85 m2 woonoppervlakte
- 3 slaapkamers
- Bouwjaar 1965
- 146 m2 perceel
In een rustige woonomgeving aan de Voorlandseweg ligt deze tussenwoning met royale uitbouw op de begane grond en een fijne, zonnige tuin.
De woning bevindt zich op loopafstand van het centrum en alle dagelijkse voorzieningen. Daarnaast liggen de Veluwse bosgebieden op korte fietsafstand, wat deze locatie aantrekkelijk maakt voor wie graag rust en natuur combineert met gemak en bereikbaarheid.
De woning is gebouwd in het midden van de vorige eeuw en is in latere jaren op de begane grond aanzienlijk uitgebouwd, wat zorgt voor extra leefruimte. Hoewel de afwerking niet overal modern is, biedt dit de mogelijkheid om de woning geheel naar eigen smaak te moderniseren.
Enkele pluspunten:
+ Gelegen in een rustige en prettige woonomgeving
+ Op loopafstand van het centrum en voorzieningen
+ Royale uitbouw op de begane grond
+ Drie slaapkamers
+ Groot dakterras bereikbaar vanuit de hoofdslaapkamer
+ Onderhoudsarme tuin met gunstige zonligging
Door de woning heen:
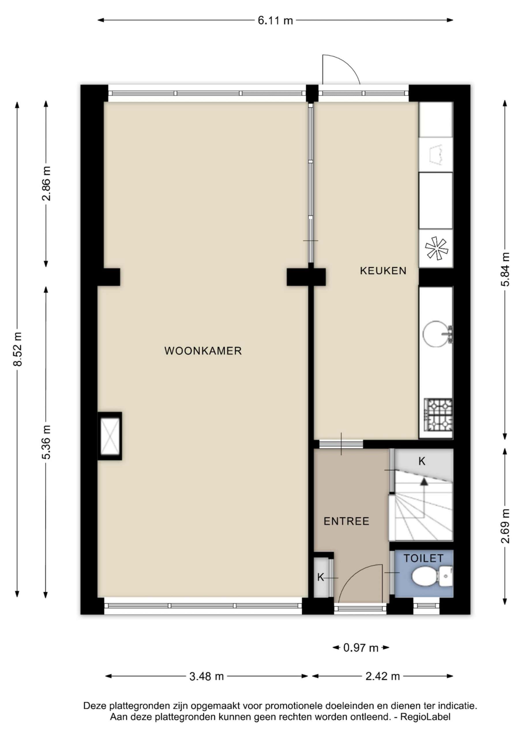
Via de entree kom je in de ruime woonkamer, waar grote raampartijen aan zowel de voor- als achterzijde zorgen voor een prettige lichtinval. De uitbouw aan de achterzijde biedt merkbaar extra woonoppervlakte en maakt de leefruimte bijzonder royaal.
Aansluitend bevindt zich de keuken. Deze is niet nieuw, maar royaal, functioneel en voorzien van een natuurstenen werkblad en de benodigde inbouwapparatuur. Dankzij de opzet is er voldoende werkruimte. Vanuit de keuken is er directe toegang tot de tuin.
Op de eerste verdieping zijn drie slaapkamers aanwezig. De grootste slaapkamer, gelegen aan de achterzijde, beschikt over een vaste kastenwand en geeft via een deur toegang tot een ruim dakterras. Daarnaast zijn er nog twee slaapkamers, waarvan één eveneens aan de achterzijde en één aan de voorzijde.
De badkamer is vergroot en ingericht met een wastafelmeubel, een ruime douche en een tweede toilet.
Via een vlizotrap op de overloop is de bergvliering bereikbaar, die voorziet in extra opslagruimte.
Buiten: De achtertuin is onderhoudsarm aangelegd en heeft een gunstige zonligging, waardoor je hier in de middag en avond prettig van de zon kunt genieten.
Deze leuke woning in een fijne woonomgeving, biedt een goede basis met veel ruimte en mogelijkheden om je er eigen thuis van te maken.
Ben je enthousiast geworden over deze uitgebouwde tussenwoning op een fijne locatie? Maak dan snel een afspraak voor een bezichtiging!
Alles over deze woning
Overdracht
| Prijs | € 350.000,- k.k. |
| Status | Onder bod |
| Aanvaarding | In overleg |
| Aangeboden sinds | 10 april 2026 |
Bouw
| Type object | Woonhuis |
| Soort | Eengezinswoning |
| Type | Tussenwoning |
| Bouwjaar | 1965 |
| Daktype | Dwarskap |
| Isolatievormen | Dubbelglas |
Oppervlaktes en inhoud
| Perceel | 146 m2 |
| Woonoppervlakte | 85 m2 |
| Inhoud | 319 m3 |
| Buitenruimtes gebouwgebonden of vrijstaand | 0 m2 |
Indeling
| Aantal kamers | 4 |
| Aantal slaapkamers | 3 |
Locatie
| Ligging | Aan rustige weg, In woonwijk |
Tuin
| Type | Achtertuin |
| Staat | Normaal |
| Ligging | Noord |
| Achterom | Nee |
Uitrusting
| Soorten warm water | CV ketel |
| Parkeerfaciliteiten | Openbaar parkeren |



































