- 98 m2 woonoppervlakte
- 4 slaapkamers
- Bouwjaar 1961
- 165 m2 perceel
Deze geheel gemoderniseerde, goed onderhouden tussenwoning aan de Kwikstraat 58 in Apeldoorn-Zuid biedt comfortabel wonen op een fijne, goed bereikbare locatie met alle voorzieningen in de nabijheid.
De woning ligt in een prettige woonomgeving met winkels, scholen en andere dagelijkse voorzieningen op korte afstand. Zo vind je niet ver van de woning onder meer een sprengengebied waar je fijn kunt wandelen, een kinderboerderij, een zwembad en sportclubs De bereikbaarheid is uitstekend, waardoor je hier rustig woont met alles binnen handbereik.
De woning is de afgelopen jaren gemoderniseerd, voorzien van een dakkapel, is voorzien van kunststof kozijnen en zonnepanelen aan zowel de voor- als achterzijde. Dit zorgt voor weinig onderhoud, extra wooncomfort én lagere energielasten.
Enkele pluspunten:
+ Geheel gemoderniseerde middenwoning
+ Kunststof kozijnen en daardoor onderhoudsvriendelijk
+ Zonnepanelen aan voor- en achterzijde
+ Drie slaapkamers (voorheen vier) op de eerste verdieping
+ Vaste trap naar zolderkamer met dakkapel
+ Zonnige en verzorgde achtertuin met twee bergingen
+ fijne woonomgeving
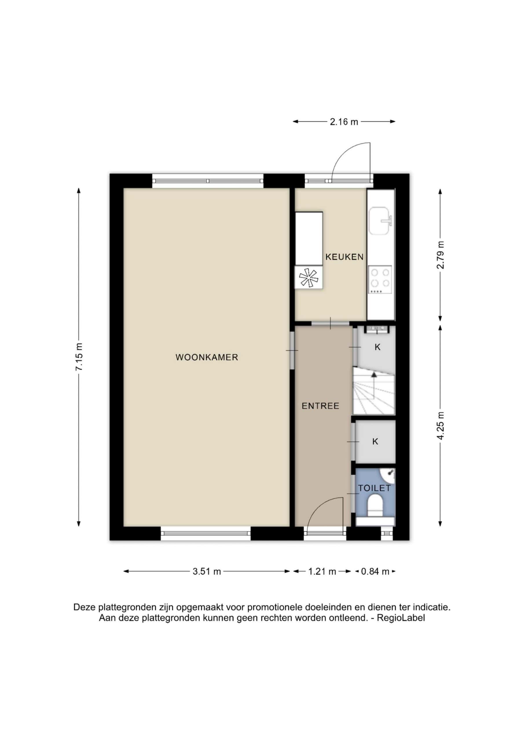
Door de woning heen: Bij binnenkomst valt direct de nette en moderne afwerking op. De begane grond is uitgevoerd met een mooie vloer en gestucte wanden. De woonkamer is licht en ruim dankzij de grote raampartijen aan de voor- en achterzijde en biedt voldoende plaats voor zowel een royale zithoek als een eettafel met zicht op de tuin.
De keuken bevindt zich naast de woonkamer en heeft een moderne uitstraling met een houten werkblad en voldoende werkruimte. De keuken is praktisch ingedeeld en geeft direct toegang tot de achtertuin.
Op de eerste verdieping bevinden zich drie slaapkamers. Oorspronkelijk waren dit er vier, maar één kamer is verbouwd tot een ruime badkamer. De badkamer is voorzien van een wandcloset, wastafelmeubel en een douche met zowel een regen- als handdouche. De voormalige badkamer wordt momenteel gebruikt als kastruimte/berging.
De zolder is bereikbaar via een vaste trap, wat deze verdieping volwaardig bruikbaar maakt. Hier vind je een ruime voorzolder en een grote kamer met dakkapel. Deze ruimte is uitstekend geschikt als extra kamer, werkruimte of hobbykamer.
Buiten: De achtertuin is keurig aangelegd en ligt gunstig op de zonzijde. Hier kun je volop genieten van het buitenleven. Aan de achtergevel is een elektrisch knikarmscherm geplaatst voor extra comfort op warme dagen. Daarnaast beschikt de tuin over zowel een houten als een stenen berging, wat zorgt voor voldoende opbergruimte.
Deze woning combineert modern wooncomfort met een praktische indeling en een fijne ligging. Een ideale kans voor wie op zoek is naar een instapklare woning in Apeldoorn Zuid.
Ben je enthousiast geworden over deze gemoderniseerde tussenwoning? Maak dan snel een afspraak voor een bezichtiging!
Alles over deze woning
Overdracht
| Prijs | € 395.000,- k.k. |
| Status | Beschikbaar |
| Aanvaarding | In overleg |
| Aangeboden sinds | 23 april 2026 |
Bouw
| Type object | Woonhuis |
| Soort | Eengezinswoning |
| Type | Tussenwoning |
| Bouwjaar | 1961 |
| Daktype | Dwarskap |
| Isolatievormen | Dakisolatie, Dubbelglas |
Oppervlaktes en inhoud
| Perceel | 165 m2 |
| Woonoppervlakte | 98 m2 |
| Inhoud | 342 m3 |
| Buitenruimtes gebouwgebonden of vrijstaand | 0 m2 |
Indeling
| Aantal kamers | 5 |
| Aantal slaapkamers | 4 |
Locatie
| Ligging | Aan rustige weg, In woonwijk |
Tuin
| Type | Achtertuin |
| Staat | Verzorgd |
| Ligging | West |
| Achterom | Nee |
Uitrusting
| Soorten warm water | CV ketel |
| Parkeerfaciliteiten | Openbaar parkeren |



































