- 96 m2 woonoppervlakte
- 4 slaapkamers
- Bouwjaar 1964
- 227 m2 perceel
Ben jij op zoek naar een goed onderhouden woning vlak bij het Orderbos?
Dan is Kruijderstraat 2 in Apeldoorn absoluut een bezoek waard!
Deze hoekwoning ligt op een fijne locatie. Binnen enkele minuten sta je midden in de fraaie natuur van het Orderbos. Je woont hier ook op een steenworp afstand van het recent vernieuwde Ordenplein. Een wijkwinkelcentrum met een gevarieerd winkelaanbod en veel andere voorzieningen zoals de supermarkt, de warme bakker, een viswinkel en nog veel meer! Ook vele sportverenigingen, scholen, speelveldjes en de uitvalswegen van Apeldoorn zijn vanaf deze locatie eenvoudig te bereiken. En mocht je naar het centrum of station van Apeldoorn willen? Met enkele fietsminuten ben je daar ook.
De woning is in de afgelopen jaren gemoderniseerd én vergroot. In 2023 is het dak volledig gerenoveerd en is de gehele woning na-geïsoleerd. Dankzij de geplaatste dakopbouw met twee dakramen beschik je nu over een volwaardige tweede verdieping met een vierde slaapkamer. Alle slaapkamers zijn voorzien van een vaste internetaansluiting. Ook de muren en alle vloeren zijn geïsoleerd.
Daarnaast zijn er airco’s geplaatst in zowel de woonkamer als de master bedroom. Dankzij de kunststof kozijnen en het energielabel A geniet je van lage onderhoudskosten en een gunstig energieverbruik.
Enkele pluspunten van de woning:
– Uitgebouwd op de begane grond;
– Volwaardige 2e verdieping door de geplaatste dakopbouw;
– Airco in woonkamer en master bedroom;
– Kunststof kozijnen, energielabel A;
– Elektrische rolluiken en zonwering.
– Fraai aangelegde tuin met oprit, garage en afsluitbare carport.
Door de woning heen:
Via de voordeur kom je in de hal met het toilet en de trapkast. Vanuit de hal bereik je de lichte woonkamer met airconditioning. De ruimte voelt ruimtelijk aan en biedt volop plek voor zowel een zit- als eethoek. Aan de achterzijde is de woning uitgebouwd; hier bevindt zich de moderne keuken, uitgevoerd in eigentijdse kleurstelling en voorzien van diverse inbouwapparatuur.
Via de keuken loop je de verzorgde achtertuin in, met sierbestrating, borders en een heerlijke zitplek. Naast de tuin vind je de geïsoleerde stenen garage en de afsluitbare carport met elektrische deur. Aan de zijkant is bovendien een ruime oprit met parkeergelegenheid voor meerdere auto’s.
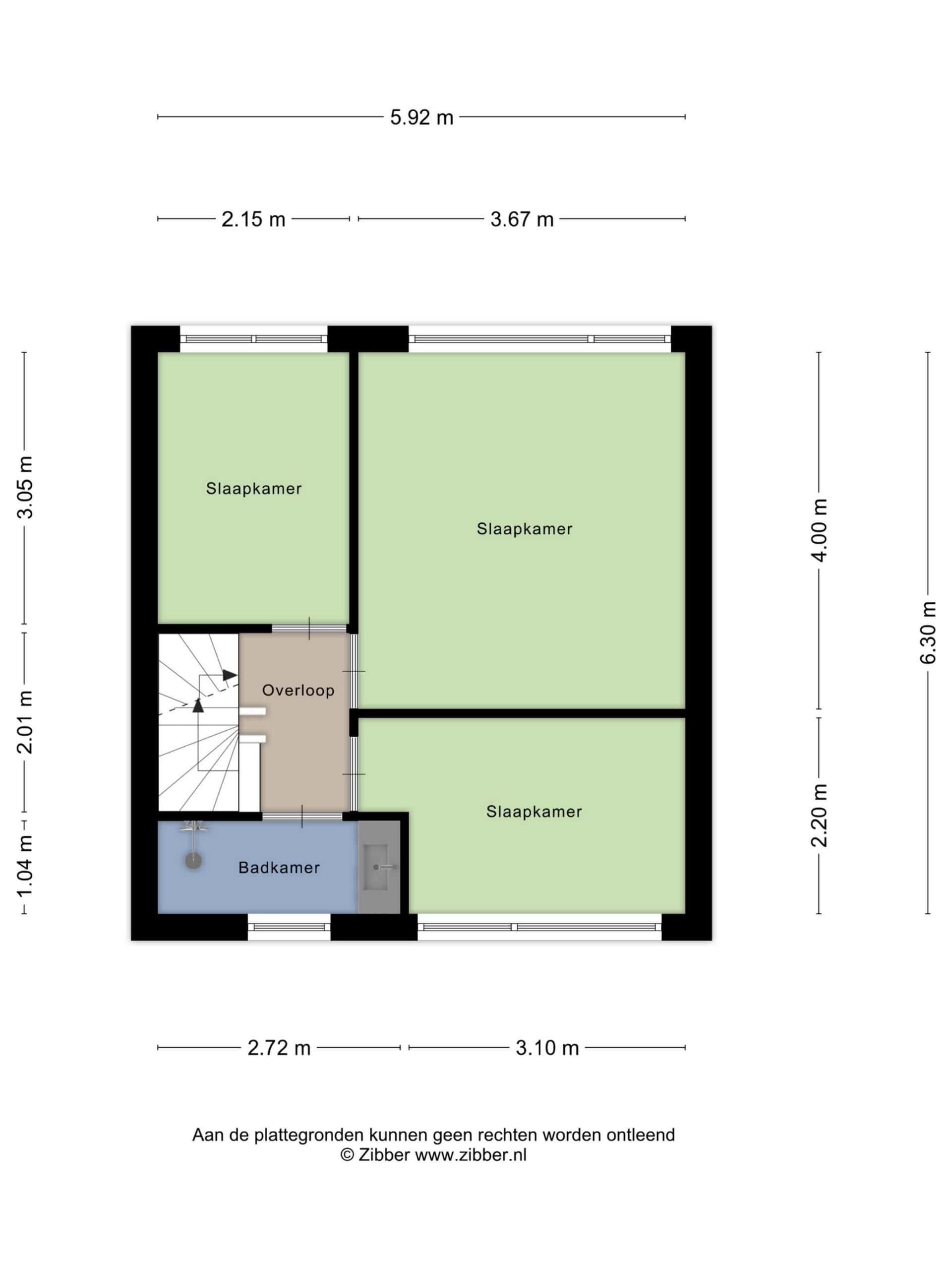
Op de eerste verdieping bevinden zich drie goed bemeten slaapkamers met nieuwe vloeren en de badkamer, die volledig is betegeld en voorzien van een douche en wastafelmeubel.
Via de vaste trap bereik je de tweede verdieping, waar door de geplaatste dakopbouw een royale vierde slaapkamer is ontstaan. Deze verdieping biedt veel daglicht en extra bergruimte achter de knieschotten.
Kortom: een instapklare en energiezuinige woning op een heerlijke plek nabij het Orderbos, met alle voorzieningen om de hoek. Kom jij kijken?
Alles over deze woning
Overdracht
| Prijs | € 475.000,- k.k. |
| Status | Verkocht |
| Aanvaarding | In overleg |
| Aangeboden sinds | 01-01-1970 |
Bouw
| Type object | Woonhuis |
| Soort | Eengezinswoning |
| Type | Hoekwoning |
| Bouwjaar | 1964 |
| Daktype | Dwarskap |
| Isolatievormen | Dakisolatie, Muurisolatie, Vloerisolatie, Dubbelglas |
Oppervlaktes en inhoud
| Perceel | 227 m2 |
| Woonoppervlakte | 96 m2 |
| Inhoud | 333 m3 |
| Buitenruimtes gebouwgebonden of vrijstaand | 22 m2 |
Indeling
| Aantal kamers | 5 |
| Aantal slaapkamers | 4 |
Locatie
| Ligging | Aan rustige weg, In woonwijk |
Tuin
| Type | Achtertuin |
| Staat | Fraai aangelegd |
| Ligging | Noordoost |
| Achterom | Ja |
Uitrusting
| Soorten warm water | CV ketel |
| Parkeerfaciliteiten | Op eigen terrein |






































