Apeldoorn – Kersenlaan 86 - Buurman Makelaardij

Kersenlaan 86 A

7322 SG, Apeldoorn

BESCHIKBAAR
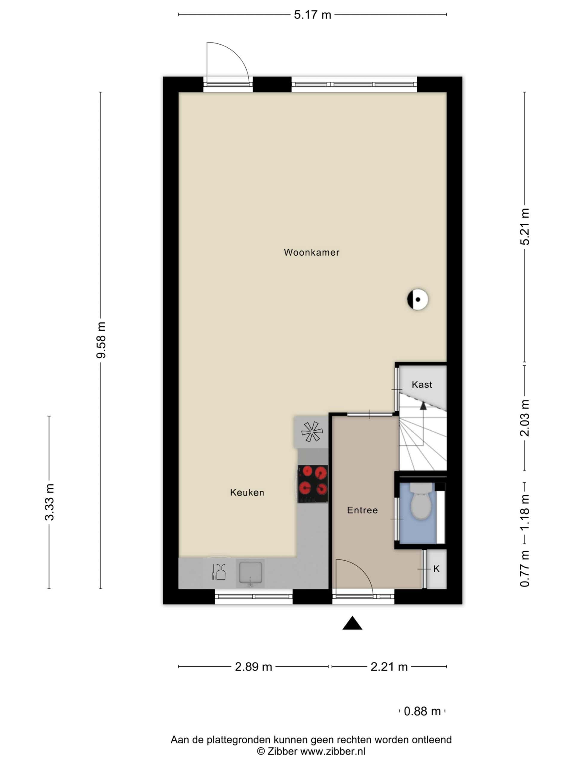
Plattegrond
Video
  • 86 m2 woonoppervlakte
  • 3 slaapkamers
  • Bouwjaar 1984
  • 145 m2 perceel

Een leuke tussenwoning met een stenen berging, een heerlijke zonnige tuin en energielabel A, zoek jij dat? Kom dan snel kijken bij Kersenlaan 86. Deze aantrekkelijke eengezinswoning ligt op een gewilde locatie met heerlijk vrij uitzicht, ruim voldoende parkeergelegenheid voor de deur, dichtbij het Mheenpark en op 5 minuten fietsafstand van centrum en station!

Door de woning heen: we komen binnen in de hal met de meterkast en het toilet. De meterkast is voorzien van 3-fase aansluiting waardoor er een mogelijkheid is voor een laadpaal of wallbox. We lopen door naar de woonkamer. Wat direct opvalt is de mooie oppervlakte, de lichtinval en het zicht op de tuin. Er is een trapkast, handig voor je voorraad en er is een zeer zuinig stokende en geen stankoverlast gevende houtkachel (ter overname). Er is voldoende ruimte voor het plaatsen van een zit- en eethoek. De ruime keuken bevindt zich aan de voorzijde van de woning, is in L-vorm opgesteld en is voorzien van inbouwapparatuur o.a een inductiekookplaat!

We nemen de trap vanuit de hal naar de 1e verdieping. Hier vinden we 3 slaapkamers, waarvan 1 kamer aan de achterzijde voorzien is van een dakkapel. Alle 3 de slaapkamers hebben een prima afmeting. De badkamer is voorzien van een douche, een 2e toilet, een wastafel en hier is ook de wasmachine-aansluiting. Op de overloop is er een bergkast met de opstelling van de cv-ketel (2024). En er is een luik met een vlizotrap naar een bergzolder.

Buiten: de tuin is gelegen op het zuidoosten en is mooi aangelegd, er is een groot terras en een diversiteit aan bomen en planten. Je zit hier helemaal vrij. Achterin de tuin is een poort met de achterom, de stenen berging en een ruime overkapping.

Bouwjaar: 1984. De woning is volledig geïsoleerd en er liggen 8 zonnepanelen op het dak. Energielabel A. Deels kunststof kozijnen met HR++ beglazing, kunststof voor- en achterdeur, een slimme thermostaat en radiatoren met slimme thermostaatknoppen waardoor elke ruimte afzonderlijk verwarmd kan worden.

Interesse gekregen in deze fijne tussenwoning op een aantrekkelijke locatie? Bel dan snel voor een afspraak!

Alles over deze woning

Overdracht

Prijs€ 379.500,- k.k.
StatusBeschikbaar
AanvaardingIn overleg
Aangeboden sinds 7 april 2026

Bouw

Type objectWoonhuis
SoortEengezinswoning
TypeTussenwoning
Bouwjaar1984
DaktypeDwarskap
IsolatievormenDakisolatie, Muurisolatie, Vloerisolatie, Dubbelglas

Oppervlaktes en inhoud

Perceel145 m2
Woonoppervlakte86 m2
Inhoud304 m3
Buitenruimtes gebouwgebonden of vrijstaand0 m2

Indeling

Aantal kamers4
Aantal slaapkamers3

Locatie

LiggingAan rustige weg, In woonwijk, Vrij uitzicht

Tuin

TypeAchtertuin
StaatVerzorgd
LiggingZuid
AchteromJa

Uitrusting

Soorten warm waterCV ketel
ParkeerfaciliteitenOpenbaar parkeren

€ 379.500 k.k.

BESCHIKBAAR
Makelaar foto

Erika Buurman

NVM Makelaar

erika@buurman.nl

Schaduwstand

Kaart

Plattegronden

Brochures

Download media

In jouw broekzak

Via WhatsApp staan we altijd dichtbij. Stel je vraag en we helpen je direct verder.

Whatsapp ons!

Contact

Arnhemseweg 117
7331 BE Apeldoorn

T: 055 5332915
E: info@buurman.nl

Schrijf je in voor onze nieuwsbrief