- 120 m2 woonoppervlakte
- 3 slaapkamers
- Bouwjaar 1984
- 160 m2 perceel
Een ruime, moderne tussenwoning in een geliefde woonomgeving, zoek jij dat? Dan hebben wij de perfecte woning voor je, Jachtlaan 259-E in Apeldoorn!
Locatie: deze aantrekkelijke eengezinswoning ligt in het ‘Witte Dorp’. Een leuk, in de jaren 80 gebouwd woonwijkje. Een woonomgeving met veel groen en voor kinderen voldoende speelgelegenheid in de directe omgeving.
Op de fiets ben je snel op de Asselsestraat voor een boodschap of in het stadscentrum om te winkelen of uit te gaan. Wil je de stad uit? Dan is het station op een prima fietsafstand en de A1 is met de auto snel te bereiken. Vanuit deze woonplek zijn ook bosgebieden en sportmogelijkheden dichtbij te vinden.
Zowel binnen als buiten is het geheel onderhoud goed. Zo zijn er kunststof kozijnen met HR++ glas, kunststof gevelbekleding en het energielabel is B. En aan de binnenzijde is deze woning in lichte, moderne tinten uitgevoerd. Je kunt hier fijn en comfortabel wonen. En de woning biedt veel ruimte!
Buiten: de tuin is verzorgd, onderhoudsvriendelijk en lekker vrij gelegen. Er is een groot terras direct bij de woning en achterin de tuin is er ook nog een leuk zitje. Tevens is er een grote houten schuur en een poort met een achterom. Ook aan parkeren is gedacht, zo is er direct achter de woning voldoende parkeergelegenheid. En er is een speelveldje gesitueerd, super kindvriendelijk dus!
Enkele pluspunten van de woning:
– ruime, nette woning;
– geliefde woonomgeving;
– vrijwel geheel v.v. kunststof kozijnen met HR++ glas;
– energielabel B
Door de woning heen:
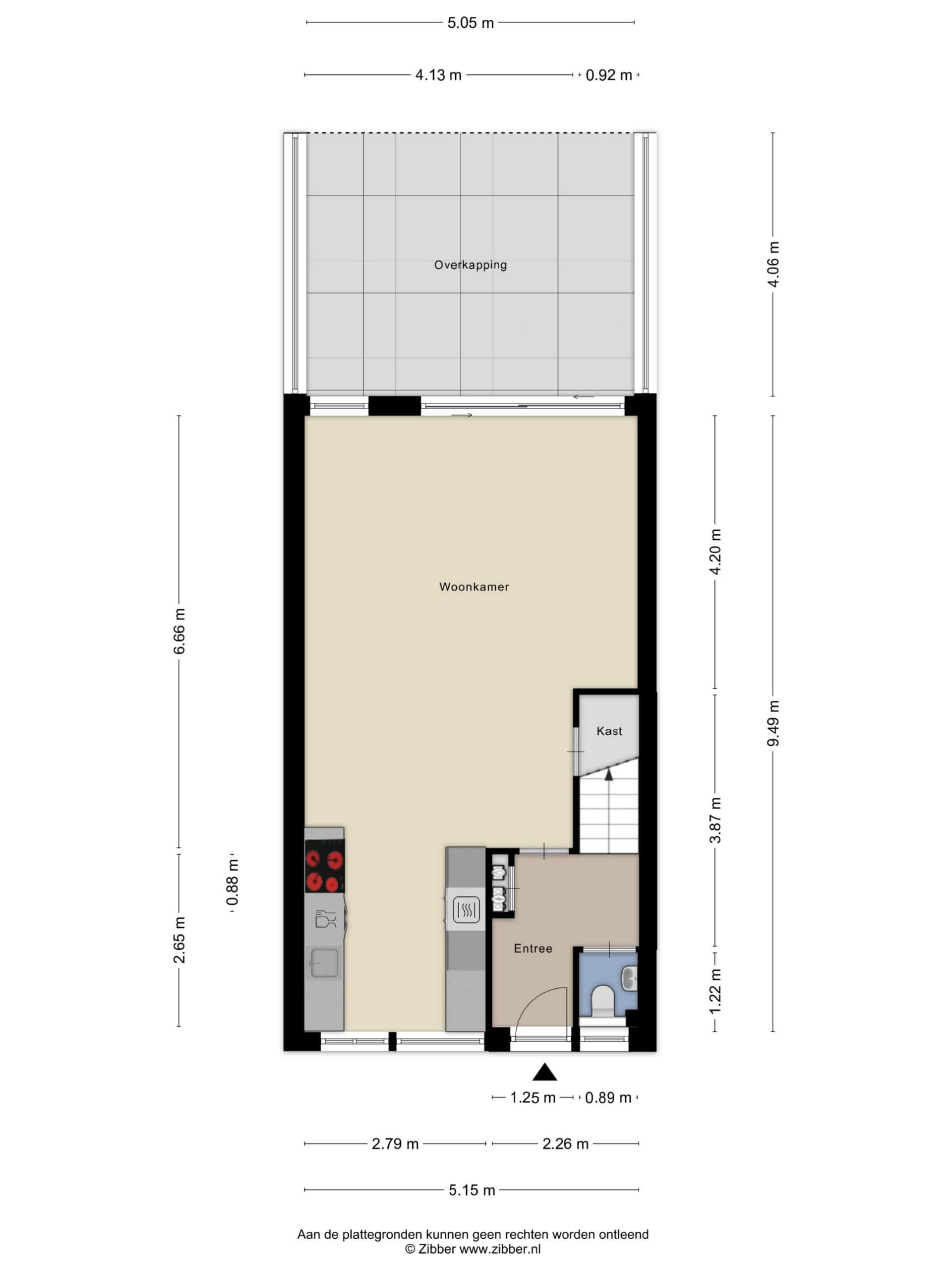
Je komt binnen in de ruime hal, hier vind je de trap naar de verdieping en het toilet. Via de hal kom je in de woonkamer. De woonkamer is een prettige ruimte met een mooie vloeroppervlakte. Er ligt een fraaie pvc-vloer, de wanden zijn gestukt en er is veel lichtinval. Er is een schuifpui naar een grote veranda. Echt een verlengstuk van je woonkamer, hier kun je tot de late uurtjes lekker buiten zitten.
De moderne open keuken is straatgericht en ziet er top uit! Het keukenblok is in rechte opstelling, heeft een mooi aanrechtblad en alle inbouwapparatuur die je nodig hebt. En er is een wand met apparatuur en extra bergruimte.
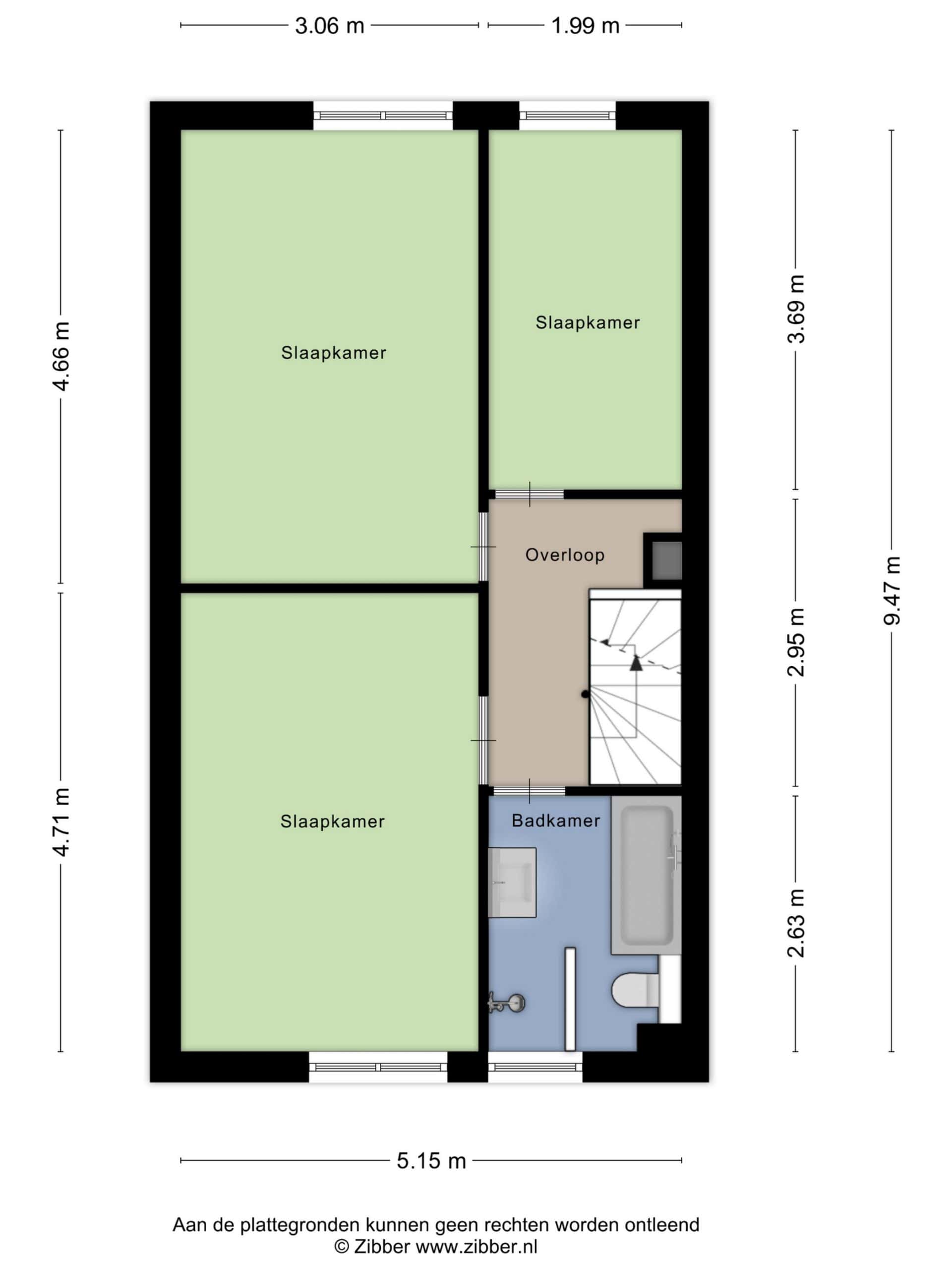
We nemen de trap naar de 1e verdieping. Hier vind je drie slaapkamers en de badkamer. Alle drie de kamers hebben een prima oppervlakte en zijn netjes afgewerkt. De badkamer is compleet uitgevoerd met een ligbad, een wastafelmeubel, een inloopdouche en een 2e toilet.
Via een vaste trap is de tweede verdieping bereikbaar. Ook deze zolderverdieping is verrassend ruim. Deze ruimte wordt momenteel gebruikt als berging en hier vind je ook de wasmachine-aansluiting en de heteluchtverwarmingsketel. Tevens is er nog een zithoek. Je zou hier ook nog prima een extra kamer kunnen creëren.
Ben je enthousiast geworden over deze ruime en goed onderhouden eengezinswoning op een fijne locatie? Plan snel een afspraak voor een bezichtiging, we laten het je graag zien.
Alles over deze woning
Overdracht
| Prijs | € 469.500,- k.k. |
| Status | Beschikbaar |
| Aanvaarding | In overleg |
| Aangeboden sinds | 01-01-1970 |
Bouw
| Type object | Woonhuis |
| Soort | Eengezinswoning |
| Type | Tussenwoning |
| Bouwjaar | 1984 |
| Daktype | Samengesteld dak |
| Isolatievormen | Dakisolatie, Muurisolatie, Vloerisolatie, Dubbelglas, HR glas |
Oppervlaktes en inhoud
| Perceel | 160 m2 |
| Woonoppervlakte | 120 m2 |
| Inhoud | 426 m3 |
| Buitenruimtes gebouwgebonden of vrijstaand | 21 m2 |
Indeling
| Aantal kamers | 4 |
| Aantal slaapkamers | 3 |
Locatie
| Ligging | In woonwijk |
Tuin
| Type | Achtertuin |
| Staat | Verzorgd |
| Ligging | Noord |
| Achterom | Ja |
Uitrusting
| Soorten warm water | CV ketel |
| Parkeerfaciliteiten | Openbaar parkeren |





































