- 133 m2 woonoppervlakte
- 4 slaapkamers
- 268 m2 perceel
Ben jij op zoek naar een mooie, royale, jaren 30 twee-onder-één-kapwoning in één van de meest geliefde woonomgevingen van Apeldoorn? Kom dan kijken bij de Gunninglaan 26.
Dit karakteristieke jaren ’30 herenhuis heeft de voor die bouwperiode zo kenmerkende architectuur en uitstraling. Dit vind je onder meer terug in een mooie kapconstructie, glas-in-lood, een grote dakoverstek, een erker, een bloembak aan de voorgevel en fraai metselwerk. Dit alles geeft de woning een fraaie, voorname uitstraling.
De locatie in Apeldoorn West is bijzonder geliefd. De Gunninglaan is een mooie, rustige en lommerrijke laan. De Veluwse bosgebieden, sportverenigingen, scholen en andere voorzieningen bevinden zich in de nabijheid van de woning. Het gezellige winkelhart van Apeldoorn bevindt zich op enkele fietsminuten afstand. Daarnaast zijn de uitvalswegen binnen enkele minuten bereikbaar. Al met al een ideale woonomgeving op uitstekende stand.
Dit herenhuis verdient modernisering en heeft onderhoud nodig. Door de locatie, de uitstraling, de woonoppervlakte en gebruiksmogelijkheden is deze woning dat echter meer dan waard.
Ook de tuin verdient nog wat aandacht, maar de kaveloppervlakte is goed en het is fijne plek om van het buitenleven te genieten. Naast de woning vind je een royale oprit voor het parkeren van meerdere auto’s.
Enkele pluspunten van de woning:
+ fraaie jaren 30 architectuur;
+ geliefde woonomgeving, uitstekende stand;
+ in de nabijheid van voorzieningen;
+ dichtbij de bossen, op fietsafstand van het centrum
+ de woning is lekker royaal
Door de woning heen:
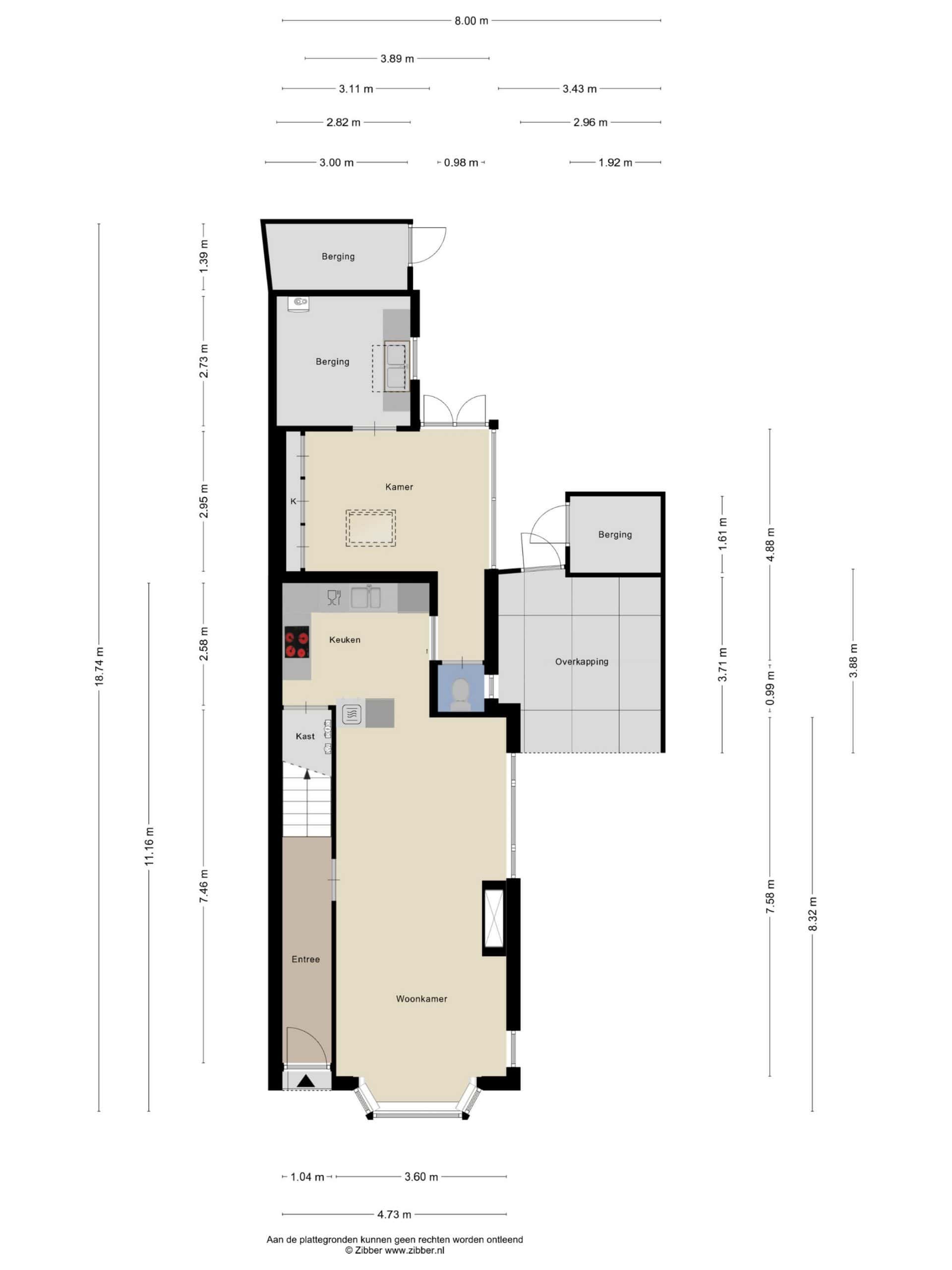
We komen binnen in de ruime hal met de trap naar de verdieping. We lopen door naar de woonkamer. De woonkamer is van een prima formaat, heeft aan de voorzijde een erker en je hebt hier veel lichtinval. Je vindt hier ruimte genoeg voor je zithoek en een grote eettafel. Ook beschikt de woonkamer over een open haard.
De halfopen keuken bevindt zich achter de woonkamer. De keuken is gedateerd maar de oppervlakte is goed. Vanuit de keuken is de provisiekelder bereikbaar en ook kom je via de keuken in een achterhal met het toilet en een aangebouwde tuinkamer met dubbele deuren naar de tuin. Vanuit deze kamer is een ruime inpandige berging bereikbaar.
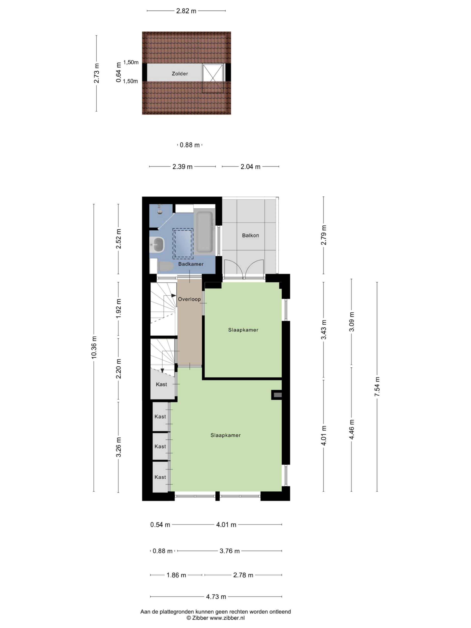
Via de vaste trap in de hal komen we op de overloop van de eerste verdieping. Hier vind je 2 slaapkamers en de badkamer. Aan de voorzijde van de woning vind je een meer dan royale slaapkamer met vaste kastruimte. Voorheen waren dit twee kamers. Mocht je hier weer twee kamers van willen maken kan dit gemakkelijk door het plaatsen van een wand, kozijn en een deur extra. De slaapkamer aan de achterzijde geeft toegang tot het balkon.
In het verleden is ook de eerste verdieping deels uitgebouwd. Hier is een ruime badkamer gerealiseerd. De keurige badkamer is geheel betegeld en voorzien van een douche, een wastafel, een ligbad en een toilet.
De 2e verdieping is bereikbaar via een vaste trap. De verdieping is voorzien van een dakkapel, enkele dakramen en is ingedeeld in 2 kamers.
Gunninglaan 26 dient gemoderniseerd te worden, maar heeft alles in zich om er je droomhuis van te maken. Heb je interesse? Bel dan snel naar Buurman Makelaardij, we laten je de woning graag zien.
Alles over deze woning
Overdracht
| Prijs | € 595.000,- k.k. |
| Status | Verkocht |
| Aanvaarding | In overleg |
| Aangeboden sinds | 01-01-1970 |
Bouw
| Type object | Woonhuis |
| Soort | Eengezinswoning |
| Type | Twee onder één kapwoning |
| Daktype | Schilddak |
| Isolatievormen | Gedeeltelijk dubbelglas |
Oppervlaktes en inhoud
| Perceel | 268 m2 |
| Woonoppervlakte | 133 m2 |
| Inhoud | 478 m3 |
| Buitenruimtes gebouwgebonden of vrijstaand | 19 m2 |
Indeling
| Aantal kamers | 6 |
| Aantal slaapkamers | 4 |
Locatie
| Ligging | Aan rustige weg, In woonwijk |
Tuin
| Type | Tuin rondom |
| Staat | Normaal |
| Achterom | Ja |
Uitrusting
| Soorten warm water | CV ketel |
| Parkeerfaciliteiten | Op eigen terrein |





































