- 229 m2 woonoppervlakte
- 4 slaapkamers
- Bouwjaar 1992
- 612 m2 perceel
Ben je op zoek naar een vrijstaand woonhuis met een fraaie architectuur, een voorname uitstraling en veel ruimte? Kom dan snel kijken aan de Eendrachtstraat 97 te Apeldoorn. Deze woning is echt royaal, heeft een inpandige garage, een extra kamer op de begane grond, een groot dakterras en een vrij gelegen tuin op de zonzijde!
Je woont hier lekker centraal; met een paar minuutjes ben je in het centrum van Apeldoorn, maar ook de bossen, sportvelden, scholen, openbaar vervoer en ontsluitingswegen zijn dichtbij.
Kortom; je kunt hier prettig wonen!
In het kort:
– Royaal woonoppervlak
– Mogelijkheid van werken of slapen op begane grond
– Parkeerplaats op eigen terrein, carport en garage
– Rondom v.v. kunststof kozijnen met isolerende beglazing
– Grote bergzolder op stahoogte
– Vrij gelegen, zonnige tuin
Door de woning heen: we komen binnen in de hal, hier valt je direct op hoe ruim deze woning is. In de hal vind je met de meterkast, het toilet en een garderobe. Vanuit de hal kun je doorlopen naar de extra kamer op de begane grond. Deze kamer is echt ruim en momenteel in gebruik als slaapkamer. Maar je kunt deze kamer ook heel goed als werkkamer gebruiken. Er ligt een mooie pvc-vloer en er is moderne wandafwerking. Ook heb je vanuit de hal toegang tot de inpandige garage met elektrisch bedienbare garagedeur; je auto kan heerlijk droog staan dus. Hier hangt ook de heteluchtverwarmingsketel.
We lopen door naar de woonkamer. Ook deze is riant; er is meer dan voldoende ruimte voor een grote zithoek. Er ligt een plavuizenvloer en er is een open haard. Je eethoek kun je aan de achterzijde kwijt. Er zijn openslaande deuren en een schuifpui naar de tuin. Heerlijk tuingericht eten dus! De open keuken is in een U-opstelling en heeft een granieten aanrechtblad, veel werk- en kastruimte en complete inbouwapparatuur.
Aansluitend aan de keuken vind je de bijkeuken met o.a. de wasmachine-aansluiting. En er is een trap naar een grote kelder, handig voor je voorraad.
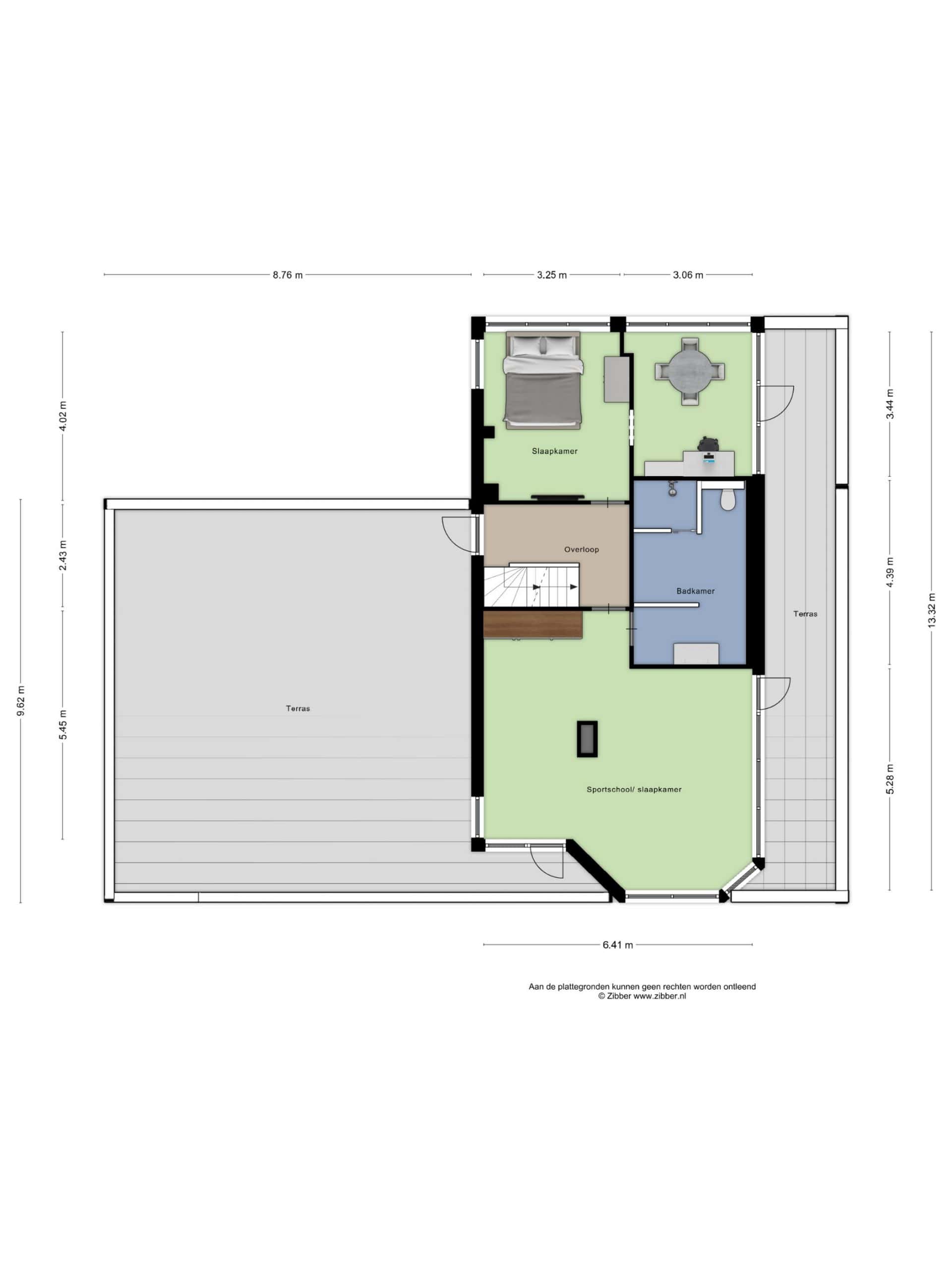
Via de trap in de hal bereik je de eerste verdieping. Hier bevinden zich twee slaapkamers en een badkamer. Eén hele ruime slaapkamer aan de voorzijde, nu ingericht als gym. En één hele ruime slaapkamer aan de achterzijde met een tussenwandje. Beide slaapkamers hebben deuren naar het zij-terras. Vanaf de overloop kun je het fantastische dakterras op.
De badkamer is uitgevoerd in een lichte kleurstelling en voorzien van een inloopdouche, een dubbele wastafel en een 2e toilet.
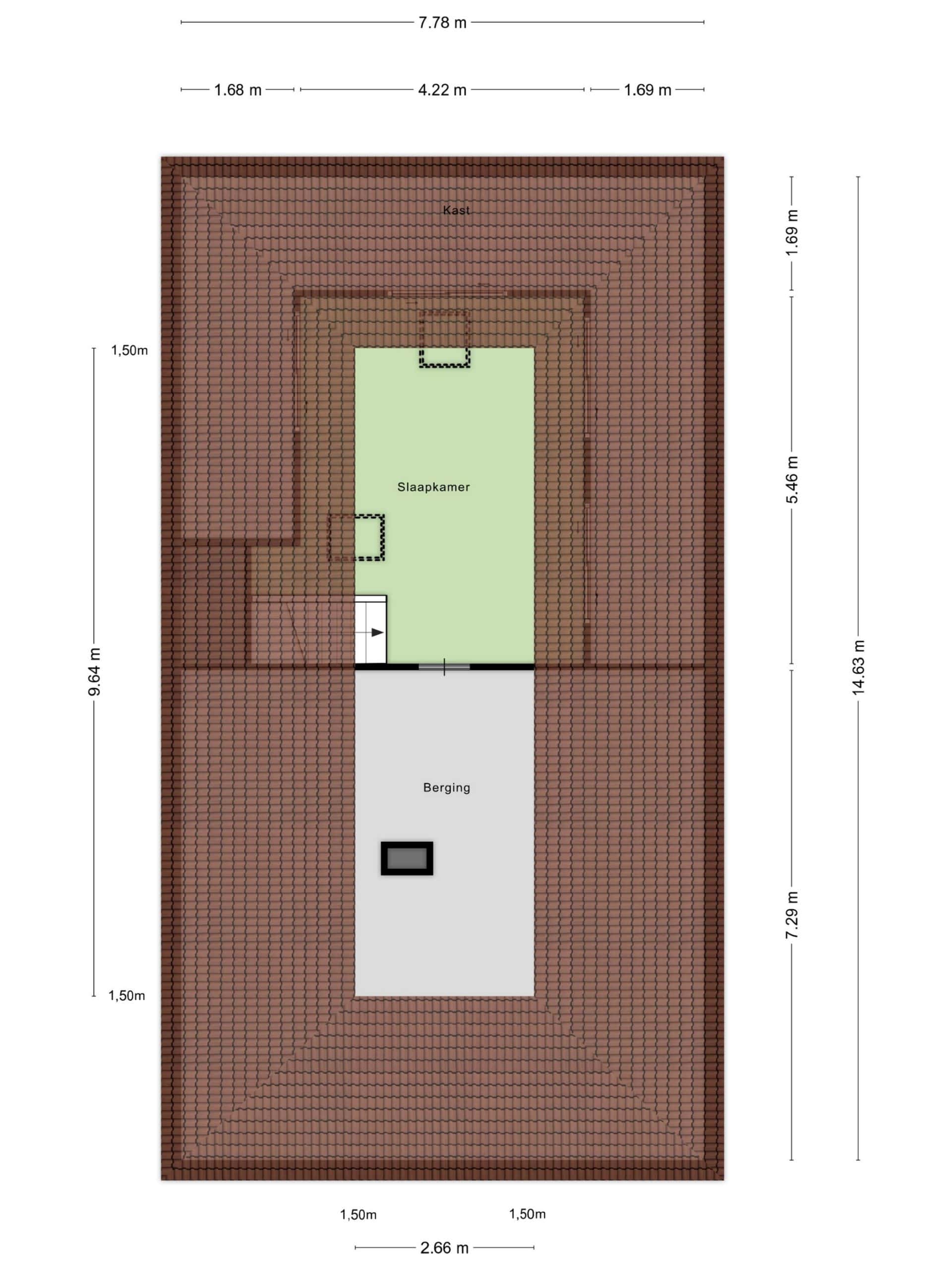
Via een vaste trap kom je op de 2e verdieping met een leuke zolderkamer met dakramen, zolderruimte en berging achter de knieschotten.
Buiten: de zonnige tuin (z) is met zorg aangelegd en het is echt een plaatje! Je kunt hier fijn van het buitenleven te genieten, met veel privacy. Er is een groot terras en er zijn mooie borders en bakken met sierbeplanting. Achterin de tuin staat een grote houten berging/stal met meerdere deuren. En aan de zijkant is er een overkapping aan het huis waar je ook heerlijk kunt zitten. Rondom het huis is er een sierhekwerk en er zijn aan beide kanten poorten. Je auto kun je kwijt onder de carport of in de garage.
Locatie: de woning ligt in een geliefde woonomgeving met alle benodigde voorzieningen binnen handbereik. Je bent met een paar minuutjes in het gezellige centrum van Apeldoorn. Maar ook de bossen, sportvelden, scholen en de uitvalswegen zijn dichtbij. Ideaal wonen dus!
Ben je op zoek naar een ruime woning in een geliefde omgeving met een inpandige garage en prachtige tuin? Maak dan snel een afspraak voor een bezichtiging met Buurman Makelaardij. Vergeet niet je eigen NVM-aankoopmakelaar in te schakelen, die jouw belangen behartigt en je tijd, geld en zorgen bespaart.
Kenmerken:
Bouwjaar: 1992
Woonoppervlakte: 229 m²
Grondoppervlakte: 612 m²
Energielabel: C
Heteluchtverwarming
Alles over deze woning
Overdracht
| Prijs | € 798.500,- k.k. |
| Status | Verkocht |
| Aanvaarding | In overleg |
| Aangeboden sinds | 01-01-1970 |
Bouw
| Type object | Woonhuis |
| Soort | Eengezinswoning |
| Type | Vrijstaande woning |
| Bouwjaar | 1992 |
| Daktype | Samengesteld dak |
| Isolatievormen | Dakisolatie, Muurisolatie, Vloerisolatie, Dubbelglas |
Oppervlaktes en inhoud
| Perceel | 612 m2 |
| Woonoppervlakte | 229 m2 |
| Inhoud | 987 m3 |
| Buitenruimtes gebouwgebonden of vrijstaand | 144 m2 |
Indeling
| Aantal kamers | 5 |
| Aantal slaapkamers | 4 |
Locatie
| Ligging | In woonwijk |
Tuin
| Type | Achtertuin |
| Staat | Fraai aangelegd |
| Ligging | Zuid |
| Achterom | Ja |
Uitrusting
| Soorten warm water | Elektrische boiler eigendom |
| Parkeerfaciliteiten | Op eigen terrein |



















































