- 120 m2 woonoppervlakte
- 4 slaapkamers
- Bouwjaar 1975
- 175 m2 perceel
Ben je op zoek naar een instapklare, ruime eengezinswoning op een rustige en geliefde locatie? Dan is Barnewinkel 703 absoluut een bezichtiging waard.
Deze uitstekend onderhouden middenwoning is zowel binnen als buiten keurig verzorgd en biedt verrassend veel woonruimte. De woning is aan de voorzijde uitgebouwd, voorzien van een dakkapel en van onder tot boven gemoderniseerd. Hierbij is gebruikgemaakt van hoogwaardige materialen en een smaakvolle, eigentijdse afwerking. Denk aan strak gestucte wanden, een massief eiken parketvloer, luxe keuken en sanitair, airco’s op alle verdiepingen, zonnepanelen en een energielabel A. De huidige eigenaren hebben hier een comfortabel en luxe thuis gecreëerd.
Ook buiten is het genieten. De verzorgde tuin ligt op de zonzijde, biedt volop privacy en beschikt over een sfeervol overdekt terras: een fijne plek om het hele jaar door van het buitenleven te genieten. Daarnaast is er een aangebouwde stenen berging en parkeergelegenheid op eigen terrein onder de carport.
De woning is gelegen in de geliefde woonwijk De Maten in Apeldoorn-Zuidoost. Een groene, ruim opgezette wijk met vijverpartijen, speelvoorzieningen en diverse scholen. Winkelcentrum De Eglantier, het grootste wijkwinkelcentrum van Apeldoorn, ligt op fietsafstand.
Pluspunten op een rij:
– geheel gemoderniseerd en uitstekend onderhouden
– instapklaar
– rustige en groene woonomgeving
– verrassend royaal
– tuin op de zonzijde
– luxe keuken en sanitair voorzien van een quooker en stoomoven.
– airco’s op alle verdiepingen
– zonnepanelen en energielabel A
– eigentijdse en hoogwaardige afwerking
Indeling
Via de uitgebouwde hal met garderobe en modern toilet kom je in de woonkamer. Een prettige, lichte leefruimte met veel privacy, strak gestucte wanden, fraaie stalen deuren en een eikenhouten parketvloer. Vanuit de woonkamer heb je direct toegang tot het terras.
De open keuken is luxe uitgevoerd en biedt volop werk- en kastruimte, fraaie werkbladen en alle gewenste inbouwapparatuur.
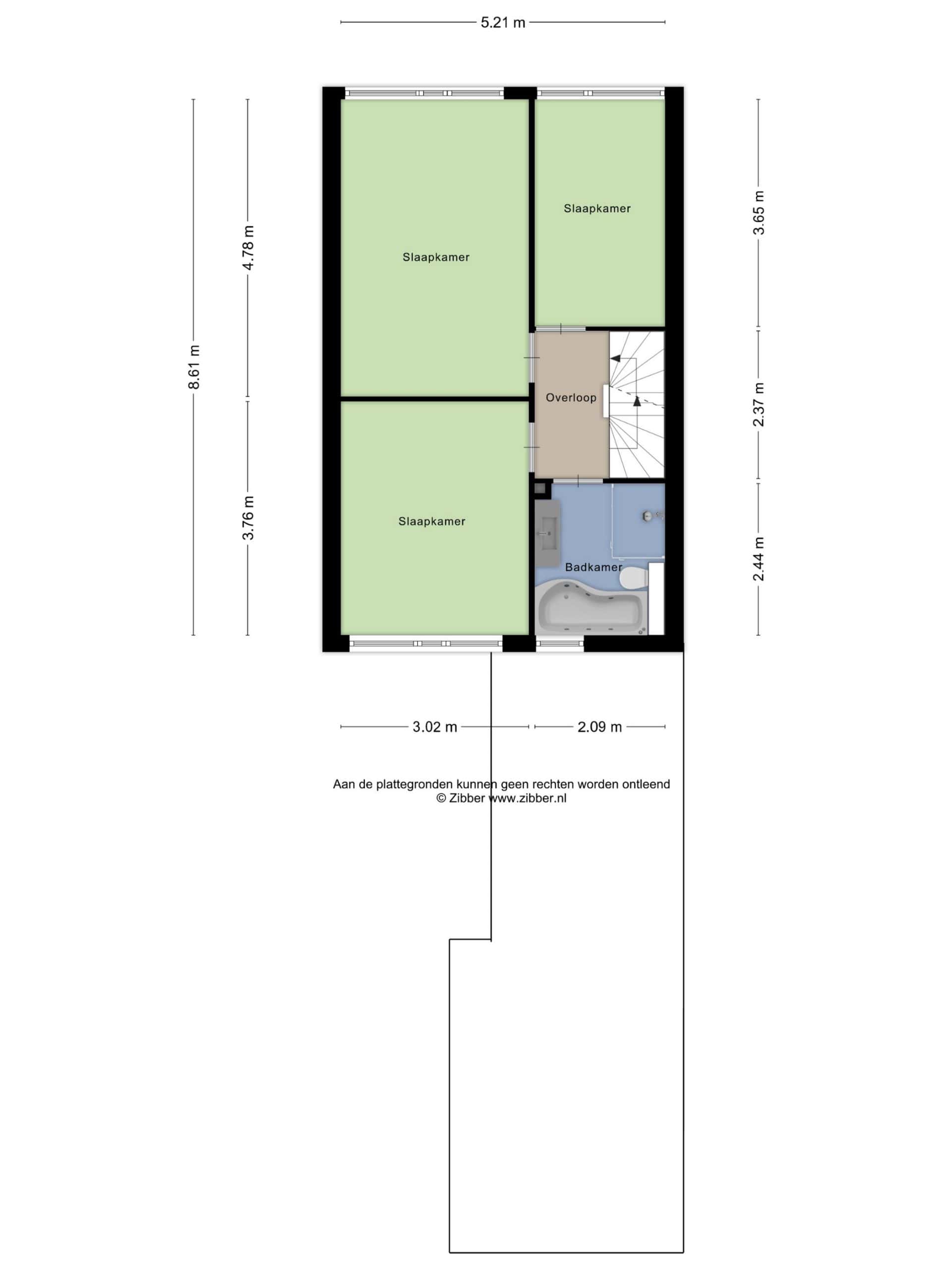
Op de eerste verdieping bevinden zich drie goed bemeten slaapkamers en een luxe badkamer met wastafelmeubel, ruime inloopdouche, ligbad en een vrijhangend toilet.
Via een vaste trap bereik je de tweede verdieping met een ruime voorzolder (incl. wasopstelling) en een royale vierde slaapkamer met dakkapel.
Enthousiast geworden?
Neem dan contact op met Buurman Makelaardij voor een bezichtiging. We laten je deze instapklare woning graag met eigen ogen ervaren.
Alles over deze woning
Overdracht
| Prijs | € 399.500,- k.k. |
| Status | Verkocht |
| Aanvaarding | In overleg |
| Aangeboden sinds | 01-01-1970 |
Bouw
| Type object | Woonhuis |
| Soort | Eengezinswoning |
| Type | Tussenwoning |
| Bouwjaar | 1975 |
| Daktype | Dwarskap |
| Isolatievormen | Dubbelglas, Volledig geïsoleerd |
Oppervlaktes en inhoud
| Perceel | 175 m2 |
| Woonoppervlakte | 120 m2 |
| Inhoud | 443 m3 |
| Buitenruimtes gebouwgebonden of vrijstaand | 18 m2 |
Indeling
| Aantal kamers | 5 |
| Aantal slaapkamers | 4 |
Locatie
| Ligging | Aan rustige weg, In woonwijk |
Tuin
| Type | Achtertuin |
| Staat | Fraai aangelegd |
| Ligging | Zuidwest |
| Achterom | Ja |
Uitrusting
| Soorten warm water | CV ketel |
| Parkeerfaciliteiten | Op eigen terrein |





















































