- 84 m2 woonoppervlakte
- 3 slaapkamers
- Bouwjaar 1954
- 310 m2 perceel
Vrijstaande woning op een perceel van 310 m², gelegen in de Vogelbuurt aan de Adelaarslaan in Apeldoorn, met een zonnige tuin op het zuidwesten, een groot bijgebouw en volop mogelijkheden om de woning naar eigen smaak te moderniseren.
De woning ligt op een prettige locatie in de Vogelbuurt. Op korte loopafstand bevindt zich het gezellige winkelcentrum Hart van Zuid voor de dagelijkse boodschappen. Ook het centrum van Apeldoorn en het treinstation zijn snel bereikbaar, bijvoorbeeld binnen enkele minuten fietsen.
De woning is niet op alle punten modern afgewerkt, maar biedt juist daardoor veel kansen voor kopers die hun eigen woonwensen willen realiseren. Bovendien beschikt het perceel over een erg ruim bijgebouw, wat extra mogelijkheden biedt voor bijvoorbeeld hobby, werkruimte of opslag.
Enkele pluspunten:
+ Vrijstaande woning
+ Gelegen op een perceel van 310 m²
+ Tuin op het zuidwesten
+ Groot bijgebouw, ideaal voor hobby of werkruimte
+ Drie slaapkamers op de eerste verdieping
+ Kelder aanwezig
Door de woning heen:
Bij binnenkomst kom je in de hal, waar zich het toilet bevindt. Vanuit hier is ook de kelder toegankelijk, wat extra bergruimte biedt.
Aansluitend kom je in de keuken. Deze is ruim van opzet en eenvoudig uitgevoerd, waardoor er volop mogelijkheden zijn om hier een moderne keuken naar eigen wens te realiseren. De keuken staat in verbinding met de woonkamer. Wie extra openheid en ruimte wil creëren, kan overwegen de tussenmuur te verwijderen zodat keuken en woonkamer meer met elkaar verbonden worden.
De woonkamer heeft een prettig formaat en beschikt over grote raampartijen aan zowel de voor- als achterzijde, wat zorgt voor veel daglicht in de ruimte. Aan de achterzijde is er een leuk uitzicht op de tuin.
Aan de achterzijde van de woning is in het verleden een uitbouw gerealiseerd. Hier bevinden zich de bijkeuken en de badkamer op de begane grond.
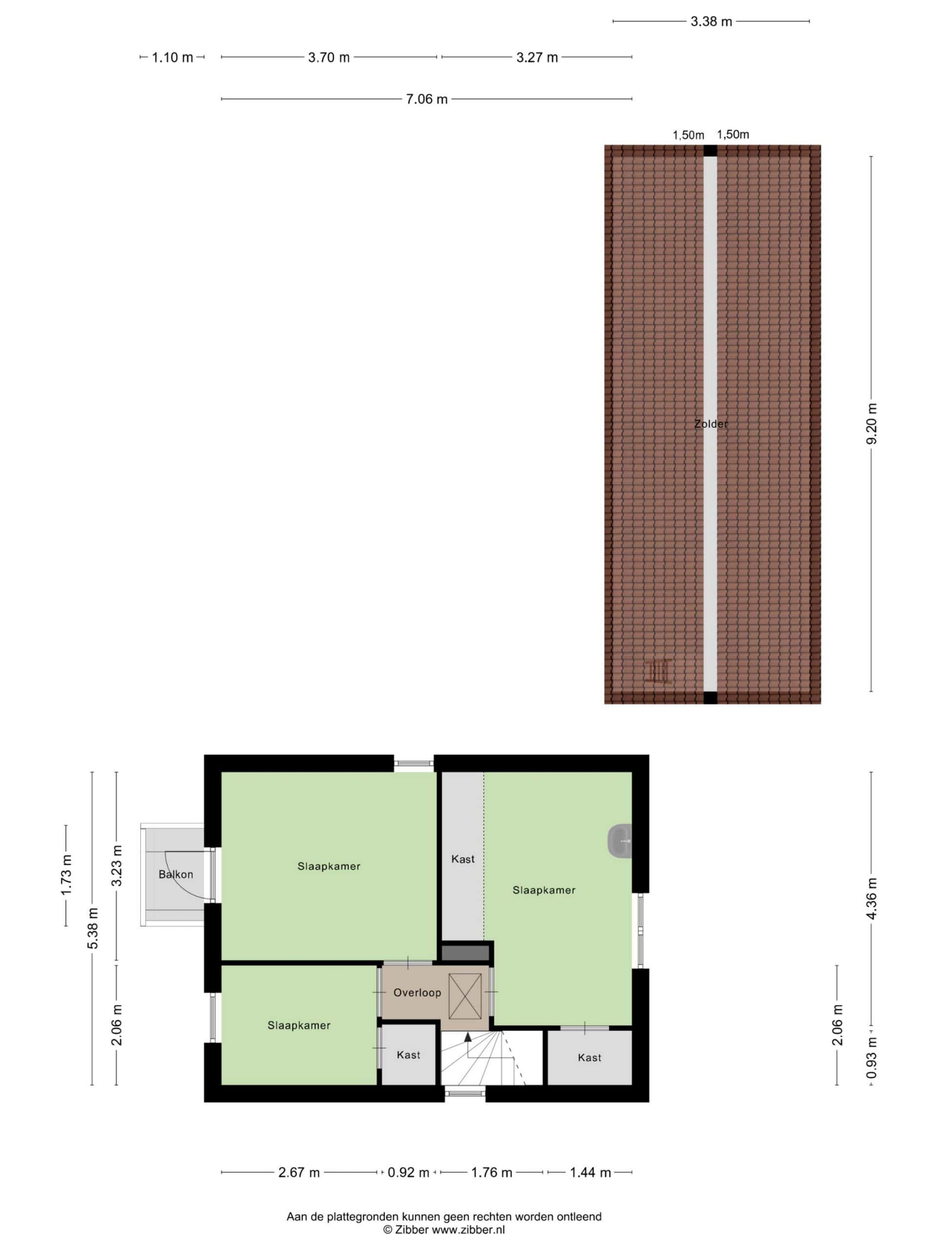
Op de eerste verdieping zijn momenteel drie slaapkamers aanwezig. Wanneer de indeling wordt aangepast, behoort het realiseren van een badkamer op deze verdieping ook tot de mogelijkheden.
Buiten:
De tuin is gelegen op het zuidwesten, waardoor je hier volop van de zon kunt genieten. Verspreid over de tuin zijn meerdere plekken waar je prettig kunt zitten.
Achter in de tuin staat een groot bijgebouw. Dit biedt veel ruimte voor bijvoorbeeld een hobby, werkplaats of opslag en maakt het perceel extra veelzijdig in gebruik.
Deze woning wordt aangeboden met een bieden vanaf prijs.
Ben je enthousiast geworden over deze vrijstaande woning met ruime tuin en bijgebouw? Maak dan snel een afspraak voor een bezichtiging!
Alles over deze woning
Overdracht
| Prijs | € 375.000,- k.k. |
| Status | Verkocht onder voorbehoud |
| Aanvaarding | In overleg |
| Aangeboden sinds | 01-01-1970 |
Bouw
| Type object | Woonhuis |
| Soort | Eengezinswoning |
| Type | Vrijstaande woning |
| Bouwjaar | 1954 |
| Daktype | Dwarskap |
| Isolatievormen | Gedeeltelijk dubbelglas |
Oppervlaktes en inhoud
| Perceel | 310 m2 |
| Woonoppervlakte | 84 m2 |
| Inhoud | 336 m3 |
| Buitenruimtes gebouwgebonden of vrijstaand | 14 m2 |
Indeling
| Aantal kamers | 4 |
| Aantal slaapkamers | 3 |
Locatie
| Ligging | In woonwijk |
Tuin
| Type | Tuin rondom |
| Staat | Normaal |
| Achterom | Ja |
Uitrusting
| Soorten warm water | CV ketel |
| Parkeerfaciliteiten | Openbaar parkeren, Op eigen terrein |







































